Коттедж, Приветливый 2-й переулок Показать на карте
Кировский район, Чукреевка
Омск
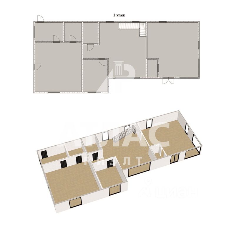
ВСЕ ПРЕИМУЩЕСТВА ЗАГОРОДНОЙ ЖИЗНИ В ГОРОДЕ!Коттедж в черте города в респектабельном поселке Чукреевка.При покупке за наличный расчет предусмотрена индивидуальная скидка!Возможен обмен на вашу недвижимость ( жилую или коммерческую)!•На земельном участке, площадью 6 соток, расположены: коттедж 161.1 кв. м, гараж на два автомобиля, оснащенный автоматическими воротами.•Планировка включает в себя: три изолированные спальни, большую кухню, совмещенную с гостиной, столовую, два санузла и застекленную террасу. Цокольный этаж 60 кв.м. •Коттедж с черновой отделкой - это отличная возможность реализовать свои дизайнерские идеи и создать жилое пространство мечты. Коттедж построен из кирпича - толщина кладки 61 см. и облицован им же, фундамент на набивных сваях, крыша из гибкой черепицы. Участок огорожен по периметру.•Коммуникации: водоснабжение центральное, переливной септик, электричество, газ, интернет. Инфраструктура: На территории КП расположены благоустроенные коттеджи, отличные подъездные пути. Рядом с поселком находится большой спальный микрорайон с развитой инфраструктурой, ТК Мега, Лемана Про.•Отличная транспортная доступность — это одно из главных преимуществ, которое делает вашу жизнь более комфортной и удобной.Уникальное предложение для владельцев недвижимости.•Если у вас есть непроданная недвижимость, у нас есть решение! Мы предлагаем программу Trade-in, которая позволит вам использовать вашу старую недвижимость в качестве оплаты за новую.•Нужна ипотека? Компания Квартсервис работает с ведущими банками, чтобы предложить вам выгодную ипотеку с низкими ставками! Это ваша возможность сэкономить время и деньги.•Все необходимые документы уже готовы и прошли юридическую экспертизу.Недвижимость без залогов и обременений! Не упустите шанс, звоните нам прямо сейчас! Показ проводится по предварительной записи в удобное для вас время.г. Омск,Кировский р-н,пер. 2-й ПриветливыйАрт. 75177353
161 м2
1 этаж
Кирпич
- Показать контакты
- Добавить в избранное
161 м2
1 этаж
Кирпич
20 300 000
126 009 /м2
