Коттедж, Ромашковая Показать на карте
Кировский район
Омск
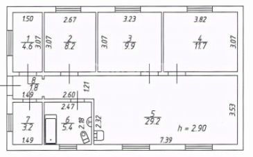
Кирпичный коттедж с тренажерным залом и дровяным камином: жизнь в гармонии с природой.РАССЧИТАЕМ ЛУЧШИЕ УСЛОВИЯ ПО ИПОТЕКЕ, С УЧЕТОМ ВАШЕЙ СИТУАЦИИ.Один собственник. Чистая продажа. Коттедж и земля в собственности.О коттедже:Площадь 371,7 м², 2 этажа и цокольный этаж, 10 соток земли в собственности. Коттедж построен из качественных материалов, по всем технологиям. Коттедж подключен к центральным городским коммуникациям газ, вода, канализация, электричество. Группа помещений 1 этажа: прихожая, кухня, гостиная с дровяным камином, мастер-спальня, котельная, санузел. Группа помещений 2 этажа: 2 изолированные комнаты, , просторный санузел с ванной.Цокольный этаж: тренажерный зал, кладовая.Теплый гараж на 1 машиноместо. Баня. Летняя беседка. Теплица. На улице тихо и спокойно, соседи доброжелательные.Чтобы оценить всю красоту и практичность данного коттеджа, необходимо увидеть его собственными глазами! Уникальное предложение для владельцев недвижимости.•Если у вас есть непроданная недвижимость, у нас есть решение! Мы предлагаем программу Trade-in, которая позволит вам использовать вашу старую недвижимость в качестве оплаты за новую.•Нужна ипотека? Компания Квартсервис работает с ведущими банками, чтобы предложить вам выгодную ипотеку с низкими ставками! Это ваша возможность сэкономить время и деньги.•Все необходимые документы уже готовы и прошли юридическую экспертизу. Недвижимость без залогов и обременений! Не упустите шанс стать владельцем этого замечательного коттеджа! Звоните прямо сейчас, чтобы договориться о просмотре!Показ проводится по предварительной записи в удобное для вас время.Омская обл., г. Омск, Кировский р-н, ул. РомашковаяАрт. 59285961
240 м2
2 этажа
Кирпич
- Показать контакты
- Добавить в избранное
240 м2
2 этажа
Кирпич
35 000 000
145 712 /м2
