Если цена в объявлении изменится, мы сразу сообщим вам об этом на электронную почту.
Нажимая «Подписаться», вы соглашаетесь с правилами.
продам 1-к, Мельничная, 1223 790 000 ₽
28 фев
Дата публикации объявления
Обн. сегодня
Дата обновления объявления
2
Количество просмотров (+ просмотры за сегодня)
126 333 ₽/м²
Чистая продажа
Термин "Чистая продажа" означает, что в квартире никто не прописан или
есть куда выписаться и вывезти вещи. Это лучший вариант для покупателя.
Вероятность срыва сделки минимальна.
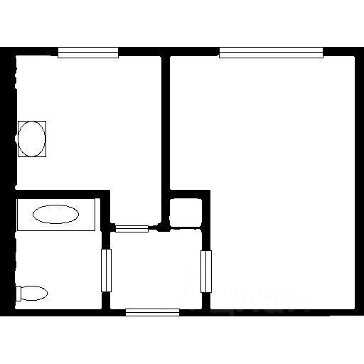
Продается уютная 1-к квартира в добротном кирпичном доме 1974 года постройки. Дом крепкий, стены теплые и толстые - соседей не слышно. Планировка квартиры: - Кухня 6 кв. м, практичный кухонный гарнитур, - Комната 18 кв. м (просторная), - Совмещенный санузел, - Окна ПВХ - Балкон застеклен ( ПВХ ), - Окна выходят на улицу - Третий этаж - золотая середина, пешком подняться легко. Почему стоит купить: В квартире чисто, можно жить сразу или сделать легкий косметический ремонт под себя. Подойдет как первый шаг в недвижимость, для сдачи. -Район: В двух шагах - Начальная школа 35, детский сад 112, Пятерочка и аптека. Остановка автобуса ''Самарка'' у дома. Уникальное предложение для владельцев недвижимости.
Продается уютная 1-к квартира в добротном кирпичном доме 1974 года постройки. Дом крепкий, стены теплые и толстые - соседей не слышно. Планировка квартиры: - Кухня 6 кв. м, практичный кухонный гарнитур, - Комната 18 кв. м (просторная), - Совмещенный санузел, - Окна ПВХ - Балкон застеклен ( ПВХ ), - Окна выходят на улицу - Третий этаж - золотая середина, пешком подняться легко. Почему стоит купить: В квартире чисто, можно жить сразу или сделать легкий косметический ремонт под себя. Подойдет как первый шаг в недвижимость, для сдачи. -Район: В двух шагах - Начальная школа 35, детский сад 112, Пятерочка и аптека. Остановка автобуса ''Самарка'' у дома. Уникальное предложение для владельцев недвижимости. -Если у вас есть непроданная недвижимость, у нас есть решение! Мы предлагаем программу Trade-in, которая позволит вам использовать вашу старую недвижимость в качестве оплаты за новую. -Нужна ипотека? Компания ''Ваш Выбор'' работает с ведущими банками, чтобы предложить вам выгодную ипотеку с низкими ставками! Это ваша возможность сэкономить время и деньги. -Все необходимые документы уже готовы и прошли юридическую экспертизу. Звоните прямо сейчас, чтобы договориться о просмотре! Показ проводится по предварительной записи в удобное для вас время. ID объекта в нашей базе: 42