1-к, Архитекторов бульвар, 17/1 Показать на карте
Кировский район
Омск
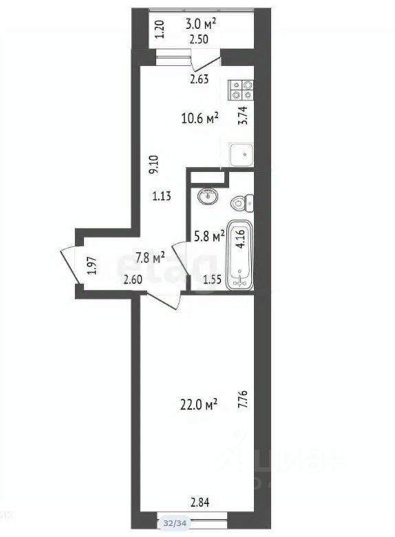
Центр ипотеки и недвижимости ТандемТ предлагает вашему вниманию однокомнатную квартиру, расположенную на шестом этаже современного дома на Левом берегу.Общая площадь: 40 м².Жилая площадь: 20 м².Площадь кухни: 10 м².Преимущества квартиры:Окна выходят на тихий зеленый двор и солнечную сторону, обеспечивая приятный вид и достаточное количество естественного света.Высота потолков составляет 2.7 метра, создавая ощущение простора и свободы.Наличие удобной лоджии позволяет организовать дополнительное пространство для отдыха или хранения вещей.Совмещенный санузел оборудован качественной сантехникой и облицован плиткой.Свободная продажа, квартира юридически чиста, долгов и обременений нет.Один взрослый собственник, никто не прописан.Возможность приобретения в ипотеку, доступная каждому покупателю.Инфраструктура района:Школа 24 и детские сады 65, 24 находятся всего в нескольких минутах ходьбы.В непосредственной близости расположен ТЦ Мега, обеспечивающий комфортный шопинг и досуг.Через дорогу находится живописный парк 300-летия Омска, идеальное место для прогулок и занятий спортом.Современная детская площадка прямо во дворе обеспечит безопасность и развлечения вашим детям.Не упустите шанс стать владельцем комфортного жилья по привлекательной цене!Гарантируем безопасное и комфортное сопровождение сделки. Страховая гарантия Профессиональной ответственности Компании! Центр недвижимости и ипотеки ТандемТ является действительным членом Омского Союза риэлторов, Российской Гильдии риэлторов. Имеет сертификат соответствия национальным стандартам Российской Гильдии риэлторов.Номер объекта: #1/537548/24613
40 м2
6 / 16 этаж
Панель
- Показать контакты
- Добавить в избранное
40 м2
6 / 16 этаж
Панель
5 250 000
131 250 /м2
