Если цена в объявлении изменится, мы сразу сообщим вам об этом на электронную почту.
Нажимая «Подписаться», вы соглашаетесь с правилами.
продам коттедж, Островская 2-я, 3516 780 000 ₽
18 июля 2025
Дата публикации объявления
Обн. 14 мая
Дата обновления объявления
15
Количество просмотров (+ просмотры за сегодня)
92 198 ₽/м²
Чистая продажа
Термин "Чистая продажа" означает, что в квартире никто не прописан или
есть куда выписаться и вывезти вещи. Это лучший вариант для покупателя.
Вероятность срыва сделки минимальна.
Этажей2
Площадь участка5 соток
Общая площадь182 м2
Материал домакирпич
ЭлектричествоЕсть
Газоснабжениецентральное
Чистая продажа.
В 5-ти минутах от самого центра города, в районе метромоста, на Левобережье, по адресу: г. Омск, ул. 2-я Островского, 35, предлагаем приобрести просторный коттедж 2021 года постройки, площадью 182 кв. м на земельном участке площадью 5 соток (назначение: земли населенных пунктов, для ИЖС).
Преимущества расположения: тихо, как в деревне, рядом Иртыш, при этом в 5-ти минутах в одну сторону центр левого берега, в 5-ти минутах в другую самый центр города, его историческая часть, со всей многофункциональной инфраструктурой, обеспечивающей полноценное и комфортное проживание.
Большое количество маршрутов общественного транспорта, позволит без пересадок добраться в любую точку города.
Чистая продажа.
В 5-ти минутах от самого центра города, в районе метромоста, на Левобережье, по адресу: г. Омск, ул. 2-я Островского, 35, предлагаем приобрести просторный коттедж 2021 года постройки, площадью 182 кв. м на земельном участке площадью 5 соток (назначение: земли населенных пунктов, для ИЖС).
Преимущества расположения: тихо, как в деревне, рядом Иртыш, при этом в 5-ти минутах в одну сторону центр левого берега, в 5-ти минутах в другую самый центр города, его историческая часть, со всей многофункциональной инфраструктурой, обеспечивающей полноценное и комфортное проживание.
Большое количество маршрутов общественного транспорта, позволит без пересадок добраться в любую точку города.
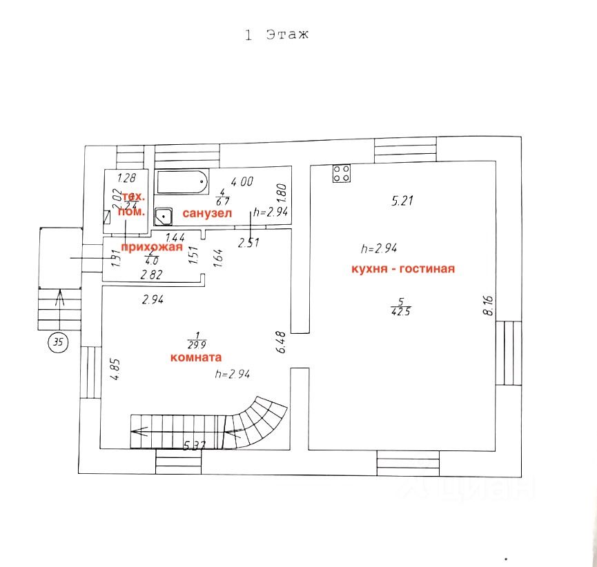
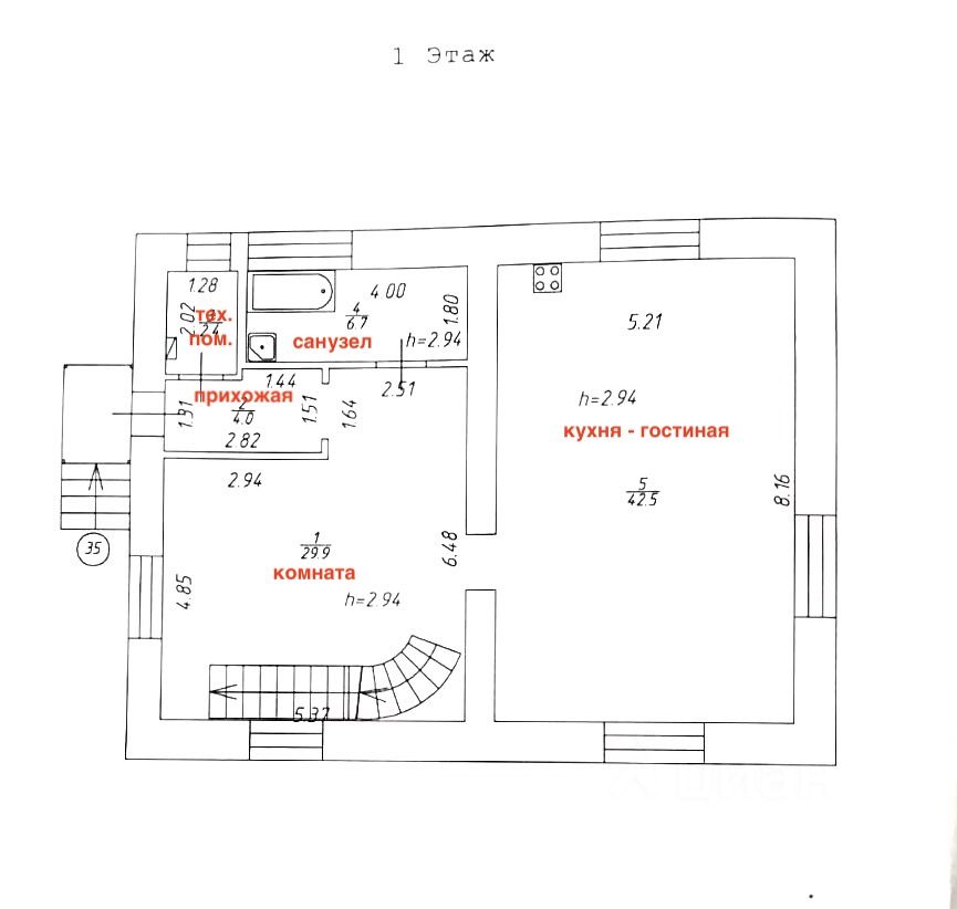
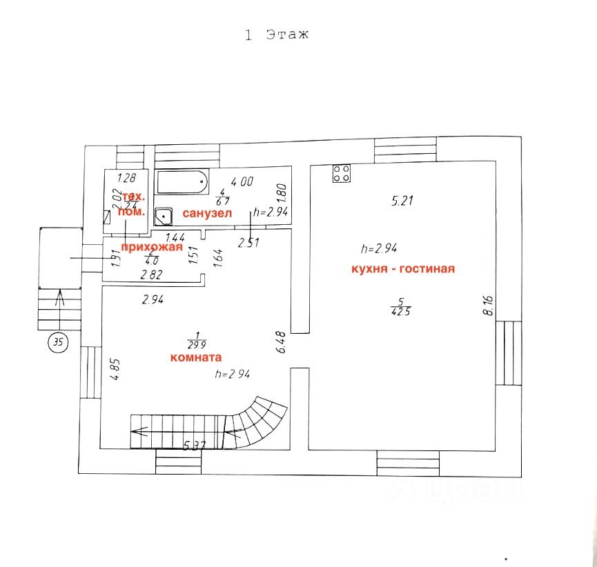
Продуманное планировочное решение дома:
На первом этаже: кухня-гостиная с выходом на противоположную сторону двора, комната (любого назначения: кабинет, мастерская, детская, гостевая, для занятий йогой, фитнесом или др.), совмещенный санузел, прихожая, помещение с техническим оборудованием.
На втором этаже: холл, три изолированные спальные комнаты, гардеробная, санузел.
Коммуникации: газовое отопление, центральный водопровод, септик, электричество.
На первом этаже сделан качественный ремонт:
установлены качественные окна ПВХ, стены выровнены по маякам, готовы под чистовую отделку (покраску, декоративную штукатурку или обои), пол с подогревом от отопления, идеальная стяжка пола (чистовое покрытие линолеум, керамическая плитка), потолок натяжной, установлены выключатели и розетки. В ванной комнате современный ремонт, качественная сантехника.
На втором этаже установлены перегородки, сделана стяжка пола, разведена электрика, проведены коммуникации в санузле, система отопления, установлены алюминиевые радиаторы во всех помещениях, вентиляция.
Во дворе достаточно место под постройку гаража, бани и беседки. Удобный подъезд к дому: возможен заезд во двор с двух сторон. Почти до самого дома новая асфальтированная дорога. Отзывчивые дружелюбные соседи.
Продаем в связи с переездом в другой регион по службе. Дом свободный от проживания. Ключи на сделке. В собственности три года в договоре показываем всю стоимость. Есть обременение ипотека в силу закона.
Это отличный выбор для тех, кто ценит комфорт, качество жизни и удобство расположения жилья. Приглашаем вас ознакомиться с домом, который может стать вашим местом силы, вашим оазисом уюта и благополучия, или же выгодным инвестиционным проектом.