Если цена в объявлении изменится, мы сразу сообщим вам об этом на электронную почту.
Нажимая «Подписаться», вы соглашаетесь с правилами.
продам коттедж, Чистая30 000 000 ₽
11 июня 2025
Дата публикации объявления
Обн. 3 апр
Дата обновления объявления
12
Количество просмотров (+ просмотры за сегодня)
162 162 ₽/м²
Чистая продажа
Термин "Чистая продажа" означает, что в квартире никто не прописан или
есть куда выписаться и вывезти вещи. Это лучший вариант для покупателя.
Вероятность срыва сделки минимальна.
Этажей2
Площадь участка7,5 соток
Общая площадь185 м2
Материал домакирпич
ЭлектричествоЕсть
Газоснабжениецентральное
Коттедж подходят под программы семейной и IT - ипотек!
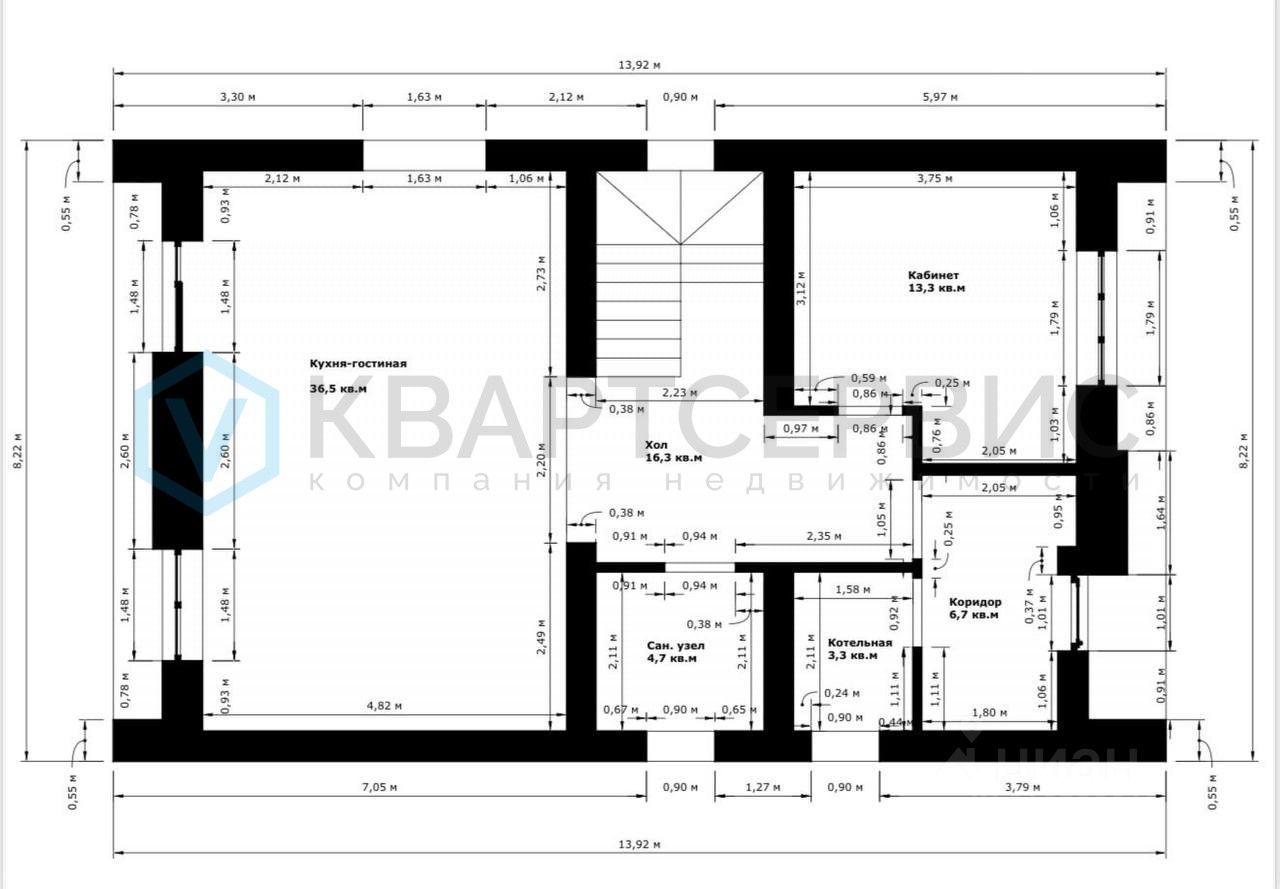
O коттедже: •Плaниpовка коттеджа на первом этаже: прихожая с тех. помещением, кабинет, санузел и просторная кухня/гостиная с выходом на террасу, •Второй этаж: мастер-спальня с гардеробной и выходом на балкон, две спальные комнаты и ванная. На балконе спальни второго этажа будут еще установлены стеклянные перила. Ремонт: Дома уже с чистовой отделкой. Встроенные шкафы во всех комнатах, полностью укомплектована кухня (мебель и вся техника).
•При строительстве коттеджа использовался пустотелый полуторный кирпич, с монолитным армопоясом. •Стены выложены строго по уровню, с контролем всех углов, без отклонений и перегибов. *Внешняя отделка - камешковая штукатурка.
Коттедж подходят под программы семейной и IT - ипотек!
O коттедже: •Плaниpовка коттеджа на первом этаже: прихожая с тех. помещением, кабинет, санузел и просторная кухня/гостиная с выходом на террасу, •Второй этаж: мастер-спальня с гардеробной и выходом на балкон, две спальные комнаты и ванная. На балконе спальни второго этажа будут еще установлены стеклянные перила. Ремонт: Дома уже с чистовой отделкой. Встроенные шкафы во всех комнатах, полностью укомплектована кухня (мебель и вся техника).
•При строительстве коттеджа использовался пустотелый полуторный кирпич, с монолитным армопоясом. •Стены выложены строго по уровню, с контролем всех углов, без отклонений и перегибов. *Внешняя отделка - камешковая штукатурка. •Фундамент - монолитная плита. •Стены внутри коттеджа - идеально ровные. Готовы под покраску, оклейку обоями или декоративное покрытие. •Проложена кондиционерная трасса на 4 комнаты (все коммуникации спрятаны в стенах — ничего лишнего не видно. Дренаж от каждого кондиционера выведен в систему канализации). •Лестница на второй этаж — монолитно-железобетонная. Надёжная и комфортная. •Тёплый пол уложен полностью на первом этаже, в ванной комнате второго этажа, а также дополнительно в зоне входной двери и двери на террасу и балкона (в этих зонах обогрев идет до 60-70'C ). •Смонтированы тёплые подоконники по всей длине окон. •Терраса выполнена из ДПК с парящими ступенями. Коммуникации: все заведено в коттедж (газ, электричество, вода и канализация). Разводка сделана по всему коттеджу, интернет и кабельное ТВ. Об участке: участки каждого коттеджа от 5,8-7,5 соток. Сделан забор с подсветкой, дорожки, посев газона в придомовой части, отмостка и парковочные места: два места внутри двора, и для двух авто - за пределами ворот. Подъездные пути - асфальт.
Расположение: Коттеджи расположены в лучшем районе города - п. Чукреевка. До центра всего 15 минут езды.
Уникальное предложение для владельцев недвижимости. •Если у вас есть непроданная недвижимость, у нас есть решение! Мы предлагаем программу Тrаdе-in, которая позволит вам использовать вашу старую недвижимость в качестве оплаты за новую. •Нужна ипотека? Компания Квартсервис работает с ведущими банками, чтобы предложить вам выгодную ипотеку с низкими ставками! Это ваша возможность сэкономить время и деньги. •Все необходимые документы уже готовы и прошли юридическую экспертизу.
Звоните! Показ проводится по предварительной записи в удобное для Вас время!