Если цена в объявлении изменится, мы сразу сообщим вам об этом на электронную почту.
Нажимая «Подписаться», вы соглашаетесь с правилами.
продам коттедж, Звездова24 900 000 ₽
21 сен 2024
Дата публикации объявления
Обн. 20 янв
Дата обновления объявления
12
Количество просмотров (+ просмотры за сегодня)
72 999 ₽/м²
Чистая продажа
Термин "Чистая продажа" означает, что в квартире никто не прописан или
есть куда выписаться и вывезти вещи. Это лучший вариант для покупателя.
Вероятность срыва сделки минимальна.
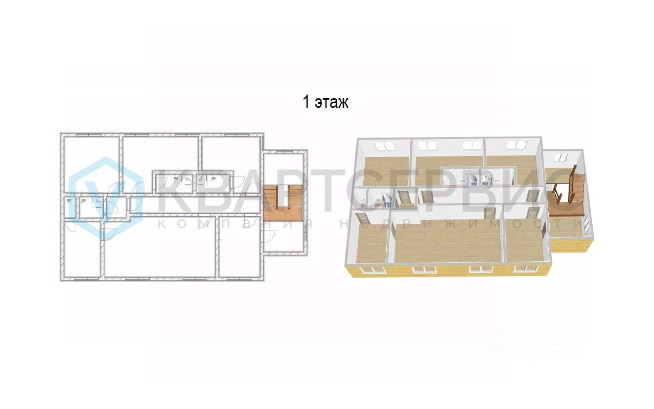
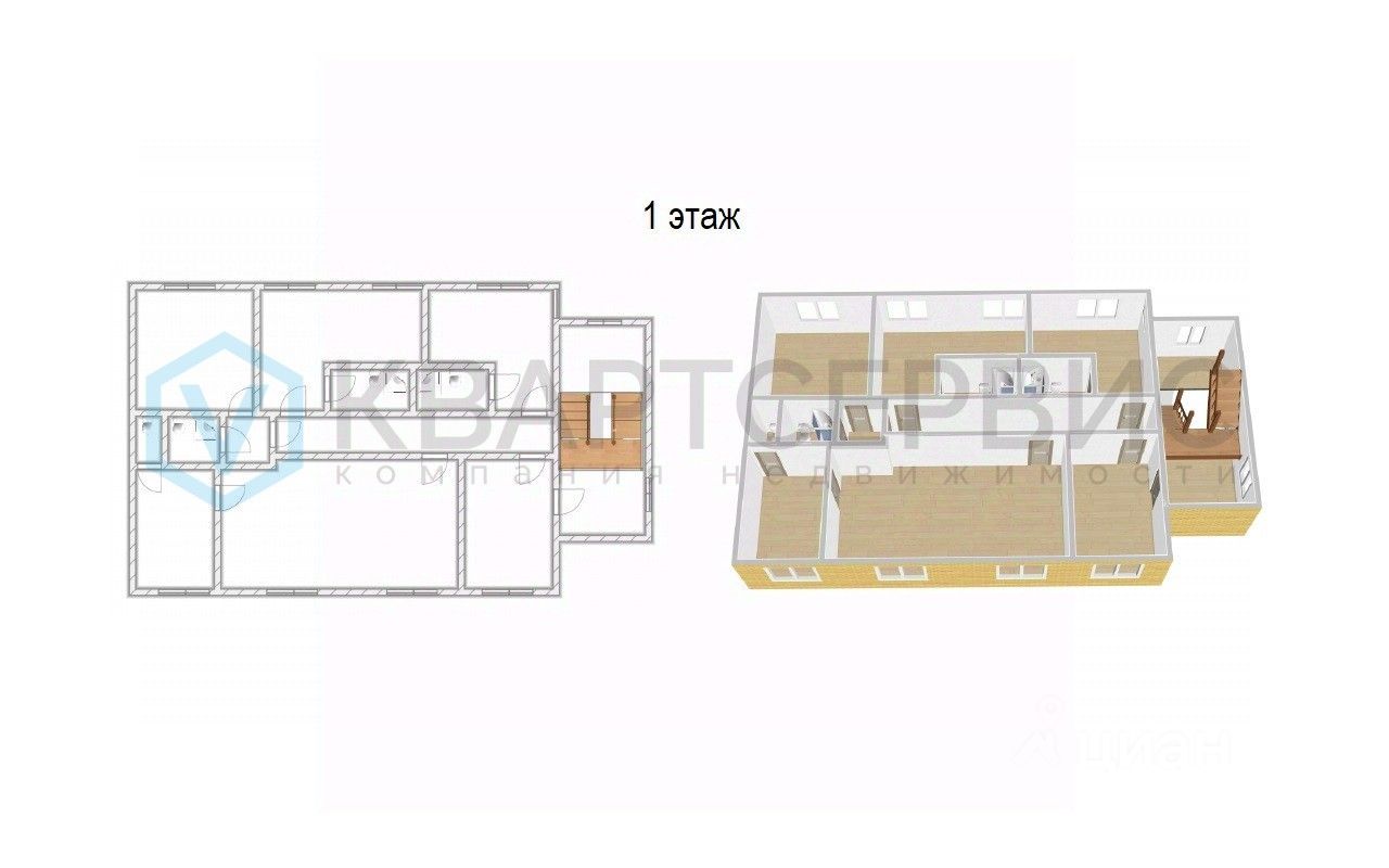
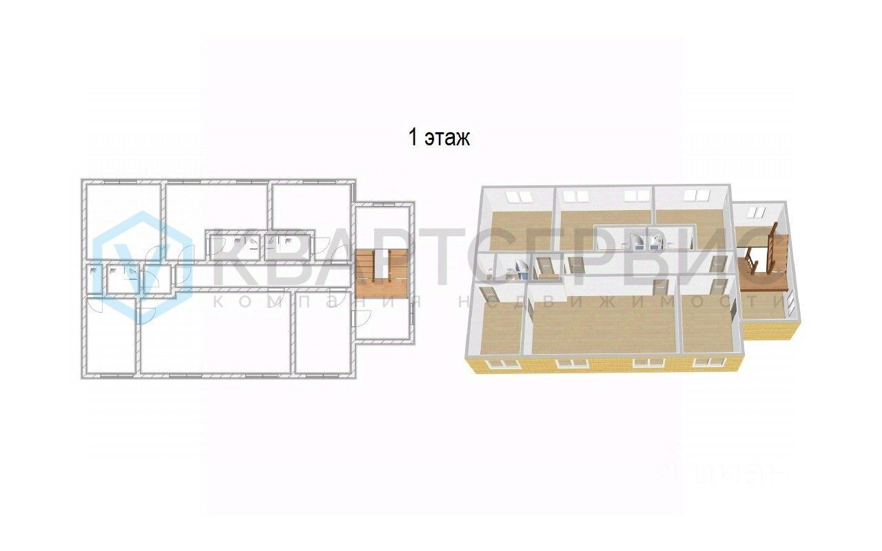
Этажей3
Площадь участка3,26 сотки
Общая площадь341,1 м2
Материал домакирпич
ЭлектричествоЕсть
Газоснабжениецентральное
Шикарный 3-х этажный коттедж в Центральном районе города. Один взрослый собственник. •Данный объект недвижимости можно рассматривать для покупки как жилой дом для большой семьи, так и для коммерческой деятельности как гостиничный комплекс. Один взрослый собственник.
•Цокольный этаж состоит из большой гостевой комнаты, сауны и просторного санузла, прачечной, котельной, гардеробной комнаты, комнаты свободного назначения с выходом в отапливаемый гараж. •Второй этаж состоит их 3 жилых комнат, каждая с собственным санузлом , столовой, площадью 20 м2, которая совмещена с комнатой для приготовления пищи и комнатой для хранения продуктов. •Третий этаж состоит из трех жилых комнат, каждая с собственным санузлом и хозяйственной комнаты.
Шикарный 3-х этажный коттедж в Центральном районе города. Один взрослый собственник. •Данный объект недвижимости можно рассматривать для покупки как жилой дом для большой семьи, так и для коммерческой деятельности как гостиничный комплекс. Один взрослый собственник.
•Цокольный этаж состоит из большой гостевой комнаты, сауны и просторного санузла, прачечной, котельной, гардеробной комнаты, комнаты свободного назначения с выходом в отапливаемый гараж. •Второй этаж состоит их 3 жилых комнат, каждая с собственным санузлом , столовой, площадью 20 м2, которая совмещена с комнатой для приготовления пищи и комнатой для хранения продуктов. •Третий этаж состоит из трех жилых комнат, каждая с собственным санузлом и хозяйственной комнаты. Во дворе установлена большая деревянная беседка, паркинг на три автомобиля.
•В цокольном этаже гостиная оборудована вместительным кухонным гарнитуром из массива дерева, большим диваном, санузел облицован итальянским керамогранитом , установлена большая акриловая ванна, биде, сауна с электропечью. Котельная оборудована тремя газовыми котлами фирмы BUDERUS, водонагревателем на 250 литров, гараж отапливаемый, установлены автоматические ворота на пульте управления. •На втором этаже все 3 жилые комнаты полностью меблированы, на полу постелен хороший линолеум, на стенах обои, установлены кондиционеры, санузлы облицованы кафелем, установлены душевые кабины, в просторной столовой установлен дровяной камин, кондиционер, столовая совмещена с кухней и комнатой для хранения продуктов. В коридоре и столовой на полу уложен кафель. •На третьем этаже три жилых комнаты также полностью меблированы, на полу постелен немецкий ламинат, на стенах обои, установлены кондиционеры, санузлы облицованы кафелем, установлены ванны. На пол в коридоре уложен кафель, установлено автоматическое освещение. Имеется эксплуатируемый чердак, где можно обустроить систему хранения вещей. •Дом 2014 года постройки, фундамент на сваях, дом кирпичный, отделка дорогим облицовочным кирпичом, межэтажные перекрытия железобетонные. •Установлены дорогие пластиковые окна ВЕКА, в цоколе все окна оборудованы надежными рольставнями на электроприводе. •Весь дом оборудован охранно-пожарной сигнализацией и видеонаблюдением.
Инфраструктура: через дорогу детский сад 250, ПВ WB, продуктовый магазин, стоматология, спортивный клуб, удобная автомобильная развязка с выездом в любой район города. •Отличная транспортная доступность — это одно из главных преимуществ, которое делает вашу жизнь более комфортной и удобной. Благодаря близости остановок общественного транспорта, вы сможете легко и быстро добраться в любую точку города
Уникальное предложение для владельцев недвижимости. •Если у вас есть непроданная недвижимость, у нас есть решение! Мы предлагаем программу Trade-in, которая позволит вам использовать вашу старую недвижимость в качестве оплаты за новую. •Нужна ипотека? Компания Квартсервис работает с ведущими банками, чтобы предложить вам выгодную ипотеку с низкими ставками! Это ваша возможность сэкономить время и деньги. •Все необходимые документы уже готовы и прошли юридическую экспертизу.
Недвижимость без залогов и обременений! Не упустите шанс, звоните нам прямо сейчас! Показ проводится по предварительной записи в удобное для вас время.