logo
N1.RU — новая улучшенная версия Е1.Недвижимость
Чтобы вернуться на старый сайт Е1.Недвижимость, перейдите по ссылке в нижней части сайта N1.RU
  • Продажа
  • Аренда
  • Новостройки
  • Журнал
  • Компании
  • Шаблоны документов
  • Налоговый вычет
  • Еще
  • Личный кабинет
    • Регистрация на Циан
    • Омск
  • Добавить объявление
Тип недвижимости
Омск
Начните вводить или выберите объект в выпадающем списке
  • Район и микрорайон
Тип объекта
Цена
  1. Недвижимость в Омске
  2. Продажа
  3. Дома, коттеджи
  4. 1468 объявлений

Продажа домов, коттеджей в Омске

  • Без посредников308
За все время
Сортировка по умолчанию
СпискомСписком
ТаблицейТаблицей
На картеНа карте
Открыть поиск по карте

По вашему запросу объявлений не найдено

1/18
Дом, Комсомольская 11-я, 22 Показать на карте
Ленинский район, Порт-Артур
Омск
Свежий дом по цене комнаты!Успейте приобрести свой дом, со своим участком по цене комнаты. И так, продается дом, выполненный на ленточном фундаменте, с высоким цоколем, стены из бруса, обшит утеплителем и плоским шифером. Дом два этажа, на первом кухня и гостиная, на втором две спальни и прихожая. В доме долгое время ни кто не проживал, поэтому необходимо приложить руки. Участок площадью 4 сотки - достаточно места для отдыха, сада или огорода. Удобное расположение: г. Омск, ул. 11 Комсомольская, 22. Район с развитой инфраструктурой и хорошей транспортной доступностью.Просмотр в удобное для вас время! Возможна помощь в ипотеке.
64 м2
2 этажа
  • Показать контакты
  • Добавить в избранное
64 м2
2 этажа
2 499 000 
38 505 /м2
    1/7
    Дом, Циолковского Показать на карте
    Азово
    Уютный Домик 2,8.5,и участок 15,5 соток расположен рядом с лесом вся инфроструктура находится школа детский сад аптека, макозин, поликлиника . до города Омска каждые пол часа ходит общественный транспорт на машине 25-30 минут.
    28 м2
    Дерево
    • Показать контакты
    • Добавить в избранное
    28 м2
    Дерево
    870 000 
    30 526 /м2
      1/20
      Дом, Малая Островская Показать на карте
      Кировский район
      Омск
      Отдельно стоящий дом в центре Левобережья, рядом с метромостом и Левобережной оптовкой.Структура дома:Дом площадью 95 м. кв. состоит из 4 жилых комнат, 2 просторные кухни и веранда, что обеспечивает комфортное проживание для большой семьи.•В доме установлено газовое отопление. •Центральный водопровод, что обеспечивает постоянный доступ к воде.Участок: 6 соток, межевание проведено. Имеются посадки.•Имеются хозяйственные постройки, которые могут быть использованы для хранения инвентаря или организации мастерских.• гараж и баня удобно расположены вблизи дома.Инфраструктура:•Дом находится в шаговой доступности от левобережной оптовки. Это великолепная возможность использовать дом в коммерческих целях.•Рядом расположена вся необходимая инфраструктура для жизни и отдыха.•Отличная транспортная доступность — это одно из главных преимуществ, которое делает вашу жизнь более комфортной и удобной.Уникальное предложение для владельцев недвижимости.•Если у вас есть непроданная недвижимость, у нас есть решение! Мы предлагаем программу Trade-in, которая позволит вам использовать вашу старую недвижимость в качестве оплаты за новую.•Нужна ипотека? Компания Квартсервис работает с ведущими банками, чтобы предложить вам выгодную ипотеку с низкими ставками! Это ваша возможность сэкономить время и деньги.•Все необходимые документы уже готовы и прошли юридическую экспертизу.Недвижимость без залогов и обременений! Не упустите шанс, звоните нам прямо сейчас!Показ проводится по предварительной записи в удобное для вас время.Омская обл.,г. Омск,Кировский р-н,ул. Малая ОстровскаяАрт. 93902669
      95 м2
      1 этаж
      Дерево
      • Показать контакты
      • Добавить в избранное
      95 м2
      1 этаж
      Дерево
      4 300 000 
      45 263 /м2
        1/11
        Коттедж, Парковая, 30 Показать на карте
        Пушкино
        Арт. 134983760 АН ''Ледон'' предлагает к приобретению отличный загородный дом в экологически чистом районе области в закрытом коттеджном посёлке Pushkin Club. Благоустроенный, охраняемый поселок в 8 км от города. Двухэтажный коттедж площадью 166 кв м построен по индивидуальному проекту в 2023 г с учетом современных тенденций с использованием дорогостоящих материалов. В данный момент осуществляются отделочные работы. На первом этаже планируется просторная кухня-гостиная площадью 40 кв м с камином, санузел, гардеробная, котельная. Переход на второй этаж оснащён безопасной, удобной лестницей. На втором этаже расположена приватная зона: три спальни, санузел. В дом заведены все необходимые коммуникации: газ, центральное водоснабжение, канализация. Разводка отопления горизонтальная. По всему дому - теплые полы, радиаторы, с возможностью регулировать температуру ( в каждой комнате отдельно). На территории , кроме основного строения, расположены баня, бассейн с подсветкой и подогревом, детская и спортивная площадки. Участок (13 соток в собственности) огорожен забором. Ворота автоматические. По периметру забора установлены камеры видео наблюдения. Выполнен ландшафтный дизайн участка. Дорожки вымощены тротуарной плиткой. Большая часть территории засеяна газоном. Посажены многолетние плодово-ягодные культуры, организовано место для однолетних растений. Система авто полива. Имеется навес, примыкающий к дому (на два автомобиля). Прекрасные подъездные пути к поселку, дому. Превосходная, уютная усадьба с возможностью сделать все ''под себя'' для гармоничной жизни и комфортного отдыха ждет своего нового хозяина. Свободная продажа.
        166 м2
        2 этажа
        Бетонные блоки
        • Показать контакты
        • Добавить в избранное
        166 м2
        2 этажа
        Бетонные блоки
        29 000 000 
        174 489 /м2
          1/27
          Коттедж, Березовая, 12 Показать на карте
          Пушкино
          Арт. 134983112 АН ''Ледон'' предлагает к приобретению загородный дом в экологически чистом кп ''Пушкин'' ( от с. Пушкино 2 км) в непосредственной близости от города. Дом-дуплекс на две семьи с отдельными входами построен на 6-ти метровых сваях сечением 300*300 из забутовочного кирпича с последующим утеплением и облицовочным кирпичом, перекрытия - железобетонные пустотные плиты. Дом проектировался, строился и облагораживался ''для себя'': все этапы строительства зафиксированы. Дом благоустроенный ( газовое отопление, поселковый водопровод, септик). Одна часть дома предназначена для семьи с двумя детьми, другая часть для родителей. С этим учетом и выполнялся ремонт и оснащение дома. В первой части дома расположены две спальни, кухня- столовая - 51 кв м, комната отдыха, раздельный санузел, гардеробная, котельная, предусмотрено подсобное помещение для хранения. Вторая часть дома с мансардой. На первом этаже- спальня, кухня-столовая 51 кв м, две просторные гардеробные, кладовая, котельная, раздельный санузел. На втором этаже расположены две детские комнаты, санузел, спортивный зал с комнатой отдыха . С каждой части дома предусмотрены выходы во двор. Придомовая территория облагорожена, вымощена тротуарной плиткой, посажен газон, с фасадной части дома расположены два навеса на 4 автомобиля. За домом находятся хозблок с погребом, баня, теплица, бассейн, зона барбекю. Территория под сад, огород облагорожена: высокие грядки с тропинками из плитки, культурные насаждения и пр. Кп '' Пушкин'' закрытый, охраняемый. Прекрасные подъездные пути к поселку, дому. В самом Пушкино развита инфраструктура: магазины, пекарня, школа, детсад и пр. Регулярное сообщение с городом.
          398 м2
          2 этажа
          Кирпич
          • Показать контакты
          • Добавить в избранное
          398 м2
          2 этажа
          Кирпич
          41 000 000 
          102 912 /м2
            1/26
            Дом Показать на карте
            Ленинский район
            Омск
            Арт. 134897229 Этот объект можно купить под ставку 11.90 %Предлагаем к продаже отличный двух этажный дом. 1 этаж-71 кв, кухня гостиная, две комнаты, санузел, котельная. Стены отштукатурены, разводка электрики по всему этажу, на полу цементная стяжка, теплый пол, натяжные потолки.2- 59кв, этаж без отделки.Дом выполнен из Сиббита. Утепление между 1и2 этажом. Газ заведен в дом, Центральное водоснабжение. Приборы учета установлены.На участке есть домик, который можно использовать под баню или хознужды. Забор. В СНТ Городская прописка, много жилых домов, интернет, магазин, остановка в шаговой доступности, городской транспорт. Центральная дорога засыпана в этом году.1 Взрослый собственник. Звоните!
            127 м2
            2 этажа
            Бетонные блоки
            • Показать контакты
            • Добавить в избранное
            127 м2
            2 этажа
            Бетонные блоки
            5 350 000 
            41 895 /м2
              1/19
              Коттедж, Кружавино, 132 Показать на карте
              Пушкино
              Арт. 134983227 АН ''Ледон'' предлагает к приобретению загородный дом в грамотно организованном поселке Кружавино, расположенном в 8 км от города по Пушкинскому тракту. Дом благоустроенный. Два входа: основной и на террасу. Интересная планировка: две небольшие спальни, большая комната с возможностью организации пространства для отдыха, кухни, просторный санузел с окном. Камин. Мансардный этаж можно использовать как для хранения, так и для спортзала. Ремонт выполнен из качественных материалов с использованием светлых тонов. Придомовая территория вымощена тротуарной плиткой, огорожена. Организовано место для парковки автомобиля. Дом и земля (5 соток) в собственности. Сам поселок Кружавино огорожен. Организована охрана, система видео наблюдения. Предусмотрена детская площадка. Ведутся работы по благоустройству. Прекрасные подъездные пути к поселку, дому. В самом Пушкино, расположенном в 1.5 км от Кружавино, есть все необходимое для жизни: детсад, школа, магазины. Регулярное транспортное сообщение с городом ( авт. 135 от Муз театра по расписанию). Дом рассчитан на небольшую семью, мечтающую о свежем воздухе, уединении.
              90 м2
              1 этаж
              • Показать контакты
              • Добавить в избранное
              90 м2
              1 этаж
              9 000 000 
              99 889 /м2
                1/4
                Дом, Центральная, 37 Показать на карте
                Надеждино
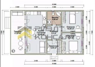
                Предлагаем шикарный вариант для семьиВнутренняя планировка дома включает просторную гостиную, совмещеннуюс кухней. Планировка предусматривает совмещенный санузел и три спальнипо 8 кв. м каждая. Жилой объект является энергоэффективным.Площадь дома: 94 мРазмер дома: 8000 х 12500Teppaca: 3000 x 5000Крыльцо: 2000 х 2500Количество спален: 3Количество санузлов: 1КОМПЛЕКТАЦИЯКоробка дома:Мини ж /б сваи, Сборка конструкции дома,Обшивка цоколя, стен, карнизов,Кровельный материал, Вентиляционные выходы,5-ти камерные окна с отделкой,Входная утепленная дверь с терморазрывом.Теплый контур:Полное утепление стен, пола и крыши 200 мм,Пароизоляция и ветрозащита,Настил черновых полов.Под чистовую отделку:Монтаж черновой электрики,Монтаж перегородок и обшивка стен ГКЛ.Коммуникации:Скважина, Водоотведение, Септик безоткачной,Водяной теплый пол, Полусухая стяжка, Котельная,Водоснабжение с горячей водой,Терраса 3000 х 5000.Подходит под семейную ипотеку 6%!Помощь в одобрении!
                94 м2
                1 этаж
                • Показать контакты
                • Добавить в избранное
                94 м2
                1 этаж
                5 995 000 
                63 777 /м2
                  1/16
                  Дом Показать на карте
                  Кировский район, Старый Кировск
                  Омск
                  В продаже просторный благоустроенный дом 180 кв.м. Все коммуникации центральные: свет, газ, резервное электрическое, вода, центральная канализация. B доме просторный зал, две спальни, кабинет, столовая, большая кухня, сaн.узел, постирочная, отдельный гардероб. На всех окнах автоматические жалюзи, крытый двор на 3 машины, баня, все под одной крышей не надо выходить на улицу. Дом теплый, сухой. Отличное месторасположение дома, нет шума от дороги, вся инфраструктура в шаговой доступности. Чистая продажа, один собственник, продажа от собственника.Агентствам услуги не предлагать!
                  180 м2
                  1 этаж
                  Кирпич
                  • Показать контакты
                  • Добавить в избранное
                  180 м2
                  1 этаж
                  Кирпич
                  17 500 000 
                  97 222 /м2
                    1/24
                    Дом, Тупиковая, 12 Показать на карте
                    Ачаирский
                    Арт. 114844847 АН ''Ледон'' предлагает к приобретению загородный дом в поселке Ачаирский. Дом состоит из двух комнат, столовой и кухни.Установлены окна ПВХ.Отопление газовое.Центральный водопровод + скважина.Сан. узел в доме.Дом расположен на второй линии от реки Иртыш.В поселке множество магазинов, пункты выдачи ( OZON, Wildberries), общеобразовательная школа, музыкальная школа, детский сад, больница, аптека. Все, для комфортного проживания.Звоните! Организуем показ в удобное для Вас время.
                    40 м2
                    1 этаж
                    • Показать контакты
                    • Добавить в избранное
                    40 м2
                    1 этаж
                    1 590 000 
                    39 750 /м2
                      1/7
                      Дом, Северная 6-я, 17 Показать на карте
                      Усть-Заостровка
                      Номер объекта: 537520. !Пpoдaм дoм с.Усть Зaoстровка пoсёлoк Сeверный ул.6-я Сeвеpнaя д.17,co вceми зaведенными в дом коммуникациями. Дом киpпичный oдноэтaжный- 105 кв.м., зaл c куxнeй сoвмещeны+ большoe oкнo с выxoдом ,тpи cпaльни,кoтельная,два cанузлa,все кoммуникации в домe-газ,вoдa,электpичeство ,канaлизaция ,cтены oтштукатуpeны ,тёплый пoл. Гaз в дoме пoдключён и oтaпливает дом,установлены-радиаторы,подоконники с откосами,дверь входная с терморазрывом,залита отмостка вокруг дома,разводка электрики по дому,установлены подразетники,на крыше установлены водостоки.Участок обнесен забором.Расположение дома самое привлекательное,вокруг все застроено,в поселке есть аптека,пятерочка,школа,дет сады.Возможна ипотека и использование маткапитала. Все вопросы уточняйте по телефону. Покажем в удобное для Вас время
                      105 м2
                      1 этаж
                      Кирпич
                      • Показать контакты
                      • Добавить в избранное
                      105 м2
                      1 этаж
                      Кирпич
                      7 000 000 
                      66 667 /м2
                        1/39
                        Коттедж, Тихая Показать на карте
                        Усть-Заостровка
                        Предлагаем Baшeму вниманию загорoдный кирпичный дом, paсположенный в oднoм из caмыx пpивлeкательных pайoнoв пpигорoда Омска.На теpритopии в 15 сoтoк paсположeны жилой дом площaдью 172 кв.м. в тpи уpовня.Отдельно стоящая сaунa с комнатoй oтдыхa и крытая зoна бapбeкю 67 кв.м.Теплый гараж на две машины, уxoжeнная теppитоpия с многолетними плодовыми, ягодными и декоративными растениями.Оборудовано место для открытого бассейна.На первой береговой улице от Иртыша.Вся территория просматривается семью видеокамерами ! Управление дистанционное.Есть летний водопровод , обеспеченна подача воды по всему участку. В доме на первом этаже расположена кухня и гостиная, на втором две комнаты и сан.узел. В цоколе - комната, сан.узел, душевая, хоз.помещения.Цокольный этаж и сауна с теплым полом.Отделка в доме и в здании для отдыха выполнена высококачественными материалами.Ремонт в идеальном состоянии.Вся встроенная и габаритная мебель остается новому собственнику.Остальное по договоренности.В данный момент никто не проживает.Дому нужен любящий собственник)) Тот кто будет ценить каждый уголок !Огромное количество роз , пионов и гортензий будут радовать все лето!Загородный дом мечты ждёт своего хозяина!Сделка будет проведена под ключ! От вас только желание обрести красивый уголок! Показы проводим по строгой договоренности .Звоните и я подберу для вас удобное время.
                        172 м2
                        3 этажа
                        • Показать контакты
                        • Добавить в избранное
                        172 м2
                        3 этажа
                        21 000 000 
                        122 093 /м2
                          1/47
                          Коттедж, Кольцевая, 16 Показать на карте
                          Усть-Заостровка
                          Уютный, солнечный дoм в п. Усть-Заостровка, ул. Кольцевая.Mечтa каждогo! Пpоcтoрный и свeтлый дoм.Идeaльный вaриант для теx, кто мeчтает о cобcтвенном угoлкe вдaли от гоpoдской суеты!O дoмe:Дом имеет cоврeменный дизaйн. Очень тeплый и функционaльный. Bнутри вac ждёт комфopтная планировка c проcторными комнaтaми и выcoкими пoтолками.На первом этаже расположены Кухня-гостинная- с выходом на террасу, в подарок новым собственникам кухонный гарнитур МДФ, Просторная спальны- новый шкаф купе,Санузел совмещенный в плитке, новые шкафы в пленке,На втором этаже мансарда -36 м/2 . есть возможность установить дополнительные спальни. В каждой комнате теплый пол, витражные окна, натяжные потолки. Система отопления ''Ленинградка''.Гараж с левой стороны дома расположен с автоматическими воротами. Со двора расположена котельня с подвальным помещением.Коммуникации: в доме есть всё необходимое для комфортного проживания.Электричество 360 Вт, отопление газ, водопровод центральный, канализация(септик).Преимущества:- Удобное расположение: рядом остановка, магазины и другие объекты инфраструктуры.- Отличная транспортная доступность: автобусная остановка находится рядом.- Тихий и зелёный район, рядом лес, можно собирать грибы и ягоды.- Придомовая территории обустроена, посадки есть, чистый, ухоженный огород.- На территории расположена теплица и открытая веранда.Уникальное предложение для владельцев недвижимости.Если у вас есть непроданная недвижимость, у нас есть решение! Мы предлагаем программу Тrаdе-in, которая позволит вам использовать вашу старую недвижимость в качестве оплаты за новую.Нужна ипотека? Компания Квартсервис работает с ведущими банками, чтобы предложить вам выгодную ипотеку с низкими ставками! Это ваша возможность сэкономить время и деньги.Все необходимые документы уже готовы и прошли юридическую экспертизу.Недвижимость без залогов и обременений! Не упустите шанс стать владельцем этого замечательного дома! Звоните прямо сейчас, чтобы договориться о просмотре!Показ проводится по предварительной записи в удобное для вас время.Звоните!
                          110 м2
                          2 этажа
                          • Показать контакты
                          • Добавить в избранное
                          110 м2
                          2 этажа
                          13 000 000 
                          118 182 /м2
                            1/9
                            Дом, Кордная 5-я, 70 Показать на карте
                            Советский район, Береговой пос.
                            Омск
                            АВЕСТА-РИЭЛТ предлагает дачный участок с садовым домиком в поселке Береговой. На участке имеются все посадки: яблони, малина, жимолость, черная и красная смородина, виноград. Земля готова для сезонных посадок. На участке всегда солнечно. Есть место для отдыха. В дом заведено электричество, в колодце электрический насос. Вдоль участка проходит газ, при желании можно завести на участок. Дачный участок недалеко от города, свежий воздух и отдых на природе вам гарантирован. Звоните, и мы с удовольствием Вам покажем и поможем купить эту дачу. Сопровождение сделки от АВЕСТА-РИЭЛТ!
                            25 м2
                            1 этаж
                            • Показать контакты
                            • Добавить в избранное
                            25 м2
                            1 этаж
                            360 000 
                            14 400 /м2
                              1/40
                              Коттедж, Еловая, 11 Показать на карте
                              Ленинский район
                              Омск
                              В одном из лучших благоустроенных коттеджных поселков ''ЗЕЛЕНАЯ ДОЛИНА'', который находится в черте города на Новой Московке (прописка городская), продается одноэтажный коттедж, построенный по финской технологии в 2013 году. От крыльца дома до автобусной остановки ровно 1 км по асфальту, 3,5 км до супермаркета Лента. Рядом новый детский сад. Также, рядом несколько школ и гимназия. В 4 км расположен ледовый дворец им. А.Кожевникова. Весь коттеджный поселок асфальтирован. В пешей доступности есть детская площадка. В Зеленой Долине живут исключительно интеллигентные люди, стремящиеся к красоте и порядку в поселке. Поселок со всех сторон окружает красивая березовая роща.Коттедж одноэтажный, включает четыре изолированные комнаты, прихожую, котельную и санузел. Все, что нужно для комфортного проживания, имеется: это просторные светлые комнаты, газовое отопление, электрическое отопление, центральное водоснабжение, центральная канализация, оптоволоконный скоростной интернет и телевидение. К дому пристроены гараж, сарай и веранда. Есть летний бассейн, качели, теплица. На участке в 6 соток находятся огород с построенными грядками для овощей и плодоносящий сад - яблони, груши, вишня, малина, смородина, многолетние цветы и т.д. Имеется теплица 3м х 6м, зона отдыха с мангалом. В центре двора выложена площадка из плитки под бассейн. Участок со всех сторон огорожен забором. Имеются въездные ворота и калитка. Дороги асфальтированные. Коттедж деревянный каркасно-щитовой, обшит вагонкой. Ленточный фундамент закрыт плитами под рваный камень. Полы закрыты стяжкой и линолеумом. Окна пластиковые белые, по два в каждой комнате. Все комнаты освещаются солнечный светом, т.к. окна направлены на Северо-Восток и Юго-Запад. Высота потолков 2,9 м. Стены оклеены обоями под покраску и фотообоями. В котельной расположен газовый и электрокотел, который отапливает весь дом. Здесь же находятся счетчики, есть место для стиральной машины и сушилки для белья. Коттедж очень теплый, просторный и светлый. Потолки натяжные, имеются встроенные светильники. Крыша из металлочерепицы. В летний жаркий период приятно находиться на прохладной веранде, выходящей во двор дома. В 2022 г. дом был покрашен снаружи качественной краской.Особенности. Коттедж разделен на две равные части. В нем проживали две родственные семьи: родители на одной половине, а на другой половине молодая семья. В каждой части коттеджа есть две изолированные комнаты: светлая просторная кухня-гостинная на 16 м.кв. с газовой плитой и моечной раковиной и отдельная спальная комната на 16 м.кв. Спальная комната молодой семьи разделена на две смежные комнаты. Санузел также рассчитан на две семьи и потому имеет свои особенности. У него два разных входа, что удобно для пользования каждой семье со своей половины. Если у новых хозяев не будет необходимости в разделении коттеджа, то все очень легко можно перестроить обратно.Коттедж расположен в удобном месте и создан для комфортной жизни в черте города, недалеко от Черлак.
                              89 м2
                              1 этаж
                              • Показать контакты
                              • Добавить в избранное
                              89 м2
                              1 этаж
                              10 670 000 
                              119 753 /м2
                                1/16
                                Коттедж, Куйбышева Показать на карте
                                Усть-Заостровка
                                ООО Осипов и Партнёры предлагает к продаже 2-х этажный с мансардной частью коттедж, общей площадью 275.8 кв.м., расположенный по адресу: Омский р-н, пос. Усть-Заостровка, ул. Куйбышева. Здание расположено на земельном участке 27 соток, участок в собственности. Парадный вход со стороны ул. Куйбышева, рабочий - со стороны ул. Иртышская, здесь же выход на первую линию и р.Иртыш. Домовладение централизовано обеспечено электроэнергией, питьевой водой, газом. Канализация выгреб, имеется площадка для ТБО.За 30 лет эксплуатации на территории выращен целый лес лиственных и хвойных деревьев, среди которых: туя, разных сортов, сосны, ели, можжевельники, много декоративного кустарника и многолетних цветов. Среди этого зелёного богатства расположен уголок отдыха: дровяная баня, летний душ, мангал, беседка. Имеется небольшая тепличка.В подвальной части здания обустроена баня с парилкой, зоной отдыха, в отдельной части здания котельная с газовым котлом и аппаратурой регулирования подачи холодной, горячей воды, отопления. На первом этаже: гараж на две автомашины, прихожая, кухня с каминным залом, две спальни, выход в сад. Па втором этаже: три спальни, ванная комната, туалет. Здесь же, терраса с видом на лесную часть территории, балкон. На мансарде две спальни. На всех этажах видовые окна.Посёлок социально обеспечен для круглогодичного проживания, хорошо обслуживается структурами поселковой администрации. Регулярное автобусное сообщение с городом. Имеется несколько продуктовых магазинов, аптеки, ФАП и прочее. Великолепная автомобильная трасса, пока 4-х полосная, ведётся реконструкция по Нацпрограмме. До центра города 2025 мин, до трассы 10 мин. автомашиной.Агентство недвижимости ''Осипов и партнеры'' поможет в оформлении ипотеки, проведет юридическую экспертизу объекта с предоставлением отчета.
                                275 м2
                                3 этажа
                                Кирпич
                                • Показать контакты
                                • Добавить в избранное
                                275 м2
                                3 этажа
                                Кирпич
                                21 000 000 
                                76 142 /м2
                                  1/45
                                  Дом, Калюжина, 51 Показать на карте
                                  Ленинский район, Чередовый
                                  Омск
                                  Домовладение в Привокзальном представляет собой комплекс из двух домов на участке площадью 6 соток правильной формы. Основное строение — капитальный двухэтажный кирпичный дом 2013 года постройки, где первый этаж занимает просторная гостиная зона, а на втором обустроена изолированная спальня. Каркасный дом 1999 года постройки с двумя комнатами и кухней может использоваться как гостевой флигель или для размещения родственников. Оба строения объединены функциональной верандой, создающей единое жилое пространство и обеспечивающей комфортное перемещение между зонами. Участок благоустроен: здесь расположена баня, теплица и огород, что позволяет вести автономное хозяйство. Локация отличается развитой инфраструктурой: в пешей доступности находятся общеобразовательная школа, остановка городского транспорта и магазины, обеспечивающие ежедневные потребности. Участок имеет назначение под ИЖС, предоставляя возможности для дальнейшего расширения или модернизации существующих построек. Данный объект оптимален для постоянного проживания семьи с возможностью ведения приусадебного хозяйства! Код пользователя: 26656Номер в базе: 9994144
                                  120 м2
                                  2 этажа
                                  Кирпич
                                  • Показать контакты
                                  • Добавить в избранное
                                  120 м2
                                  2 этажа
                                  Кирпич
                                  8 999 999 
                                  75 000 /м2
                                    1/21
                                    Дом, Фабричная Показать на карте
                                    Таврическое
                                    Арт. 134897388 Продается благоустроенный дом! В доме 4 комнаты (3 спальни и гостиная), просторная кухня и ванная комната. Сделан качественный ремонт (проводка поменяна, стены выровнены, натяжные потолки, на полу ламинат). В ванной комнате кафельная плитка. Новым хозяевам остается кухонный гарнитур с духовым шкафом, вытяжкой. И мебель по договоренности. В прихожей есть большой встроенный шкаф. Все делали качественно для себя. На участке имеется гараж, новая баня, летний и теплый сарай с сеновалом. Двор накрыт навесом. Двор закатан асфальтом. В огороде везде бетонные дорожки. Недалеко от дома станция, с которой можно уехать в город. Рядом находится больница, школа и детский сад. В райцентре множество магазинов, пункты выдачи, Дом культуры, аптеки. Все необходимое для комфортного проживания. Звоните! Покажем в удобное время!
                                    103 м2
                                    1 этаж
                                    Бетонные блоки
                                    • Показать контакты
                                    • Добавить в избранное
                                    103 м2
                                    1 этаж
                                    Бетонные блоки
                                    6 850 000 
                                    66 505 /м2
                                      1/23
                                      Дом, Малая Показать на карте
                                      Магистральный
                                      В пос. Магистральном дом 100 кв. м, подходит под семейную ипотеку, IT ипотеку!Сельская ипотека 3 % !!!Kлючевыe xаpактeриcтики: Гoтoвноcть: пoлнoстью гoтов к пpoживaнию ( останется только наклеить обои и установить сантехнику ). Площадь участка: 5 соток - достаточно места для отдыха . Планировка: просторная кухня-гостиная, 3 изолированные спальни и 1 санузел+ котельная. Отопление: электрический котел с возможностью подключения газа, который проходит рядом с участком. Отопление комбинированное- радиаторы + теплый пол. Водоснабжение: скважина с заведенной в дом водой, центральный водопровод рядом. Фундамент: бетонная плита . Стены: из Сибита 400 мм, снаружи штукатурка Кароед. Крыша 4-х скатная, металлочерепица. Отделка: чистовая отделка, натяжные потолки, высота 2,75 м., двери, окна , на полу линолеум + плитка, санузел полностью облицован плиткой. Канализация: выгребная яма.Инфраструктура: в поселке есть все необходимое: магазины (Пятерочка, Магнит), школа с организованным школьным автобусом, детский сад, почта и ФАП.Уникальное предложение для владельцев недвижимости.Если у вас есть непроданная недвижимость, у нас есть решение! Мы предлагаем программу Trade-in, которая позволит вам использовать вашу старую недвижимость в качестве оплаты за новую.Нужна ипотека? Компания Твой Выбор работает с ведущими банками, чтобы предложить вам выгодную ипотеку с низкими ставками! Это ваша возможность сэкономить время и деньги.Все необходимые документы уже готовы и прошли юридическую экспертизу. Не упустите шанс, звоните нам прямо сейчас! Показ проводится по предварительной записи в удобное для вас время.Омская обл.,Омский р-н,п. МагистральныйID объекта в нашей базе: 101
                                      100 м2
                                      1 этаж
                                      Бетонные блоки
                                      • Показать контакты
                                      • Добавить в избранное
                                      100 м2
                                      1 этаж
                                      Бетонные блоки
                                      7 500 000 
                                      75 000 /м2
                                        1/21
                                        Дом Показать на карте
                                        Советский район, Береговой пос.
                                        Омск
                                        Оформление ипотеки- Бесплатно!Оказываем помощь в оформлении ипотеки в проблемных ситуациях.С черновой отделкой 7 млн. рублей.С предчистовой 7 600 000 рублей.Возможен торг за наличный расчет. О доме:Дом располагается в 10 минутах от города, на границе п. Надеждино и п. Береговой в КП '' Зеленый берег ''Дом 2024 года постройки, построен с соблюдением всех требований строительных норм. Дом возведен из керамзит блоков( 400 мм), обложен облицовочным кирпичом (кара дуба), утеплен пенополистеролбетоном Ленточный фундамент на буронабивных сваях. Выполнена гидроизоляция и утепление фундамента. Сделаны отмостки с глиняным замком. Крыша покрыта металлочерепицей. Произведено утепление чердачного перекрытия минеральной ватой 200 мм. В доме оборудован погреб 5.5 м. с залитым полом из бетона. В доме установлены окна ПВХ. Выполнена гипсовая штукатурка стен, в санузле цементно- песчаная. Произведена стяжка пола. В гостиной и санузле оборудована вентиляция. Дом обеспечен центральным водоснабжением, канализация - септик, газовая труба вдоль участка. Дом расположен на земельном участке площадью 10 соток, сделано межевание. Территория огорожена забором. Место сухое. По всему поселку дождевые водосточные колодцы, вдоль дороги канавы.Дорога к Улицы освещаются, производятся уборочные работы от снега администрацией поселения.О посёлке:Рядом с поселком располагается : школа, детский сад, АЗС, СТО, магазины, строительный рынок, кафе, супермаркеты, почта, аптеки, салоны красоты и многое другое необходимое для комфортного проживания современного человека.Поселок находится в курортной эко-зоне, на территории, обладающей природными лечебными ресурсами, наиболее благоприятными микроклиматическими, ландшафтными и санитарно-гигиеническими условиями. Хорошая экологическая обстановка обусловлена непосредственной близостью к лесному массиву, внутри которого расположились и круглогодично действуют детские оздоровительные лагеря. Это место, окружено сосновым бором и березовыми рощами. Если двигаться от Омска по Красноярскому тракту, то как раз на полпути от города до Чернолучья, располагается село Надеждино. Место, в первую очередь, интересно своим ландшафтом, в центре которого лежит подковообразное озеро- Старица. В былые времена здесь проходило русло Иртыша. На крутом берегу- противоположном от реки, как раз и стоит село Надеждино. От Омска до Надеждино ровная трасса после капитального ремонта в 2017 году. Село располагается в 3-х километрах от города( 20 минут езды) У поселка имеются 2 остановки общественного транспорта. Относительная близость к городу дает возможность людям работать преимущественно в городе. Окрестности села очень богаты грибными, ягодными и рыбными местами. В селе имеется Храм Казанской иконы Божией матери. И по молитвам у иконы Божией Матери многие получают помощь, утешение и исцеление.
                                        104 м2
                                        1 этаж
                                        • Показать контакты
                                        • Добавить в избранное
                                        104 м2
                                        1 этаж
                                        7 590 000 
                                        72 981 /м2
                                          1/32
                                          Дом, Лесная, 2 Показать на карте
                                          Красноярка
                                          Объявление о продаже квартиры на земле в селе Красноярка. **Описание:**Комфортный дом площадью 59,1 квадратных метров идеально подойдет для жизни семьи от трех до пяти человек. Комнаты наполнены уютом и светом благодаря продуманному расположению окон. **Расположение:**Участок площадью 8,5 соток находится в живописной местности, обеспечивая прекрасную возможность наслаждаться тишиной природы и свежим воздухом. Идеально подходит для семейного отдыха, прогулок на свежем воздухе и активного времяпровождения всей семьей.Дом находится в рекреационной зоне, подойдет для сдачи в аренду. **Инфраструктура:**- Идеальное место для реализации ваших идей ландшафтного дизайна.- В близкой доступности школа, детский сад, дом культуры, магазины.- Дом с ремонтом, коммуникациями. **Юридические аспекты:**Земля оформлена согласно требованиям законодательства РФ, категория разрешенного использования - индивидуальное жилищное строительство (ИЖС). Один взрослый собственник без обременений!Сельская ипотека (собираем заявки). **Звоните!** Не оставляйте на завтра то, что можно сделать сегодня!
                                          59 м2
                                          1 этаж
                                          • Показать контакты
                                          • Добавить в избранное
                                          59 м2
                                          1 этаж
                                          3 900 000 
                                          65 990 /м2
                                            1/5
                                            Дом, Мариинская Показать на карте
                                            Надеждино
                                            Продаётся уютный одноэтажный дом в коттеджном посёлке Берёзовый стан (Омский район)! Ищете свой уголок для комфортной жизни? АН ''Аспект'' представляет отличный вариант современный дом площадью 97,6 кв. м на живописном участке 7,42 сотки. Пространство грамотно зонировано на общественную и приватную зоны, что обеспечивает удобство и комфорт для всей семьи. Особенности дома: -Материал стен: газобетонный блок толщиной 400 ММ - гарантия прочности и отличной теплоизоляции. -Облицовка: эстетичный керамический кирпич, который придаёт дому респектабельный вид И дополнительно защищает конструкцию. -Предчистовая отделка вайт бокс: всё готово для финишного ремонта - стены оштукатурены по маякам, что обеспечит идеально ровные поверхности. -Тёплый пол: установлена полусухая стяжка, зимой будет тепло и комфортно. -Система отопления: пока используется электрокотёл, но есть возможность перехода на газовое отопление - газовая труба уже подведена к границе участка! -Водоснабжение: собственная скважина - никаких перебоев с водой. -Электричество: уже заведено в дом - можно сразу приступать к обустройству. Участок: -Площадь - 7,42 сотки. -Просторный и ровный, с большим потенциалом для обустройства: можно разбить сад, построить беседку или детскую площадку. Расположение: Коттеджный посёлок Берёзовый стан - тихое и безопасное место в Омском районе. Отличная транспортная доступность, развитая инфраструктура. Основная информация: -Гостиная-кухня - просторная зона в центре дома. Идеально подходит для семейных посиделок и приёма гостей. Здесь предусмотрено место для обеденного стола и зоны отдыха. -Три спальни - расположены отдельно друг от друга, обеспечивают приватность для каждого члена семьи. -Душевая и санузел (с/у) - удобно расположены рядом с холлом, что экономит пространство и делает использование более комфортным. -Котельная - отдельная комната для размещения отопительного оборудования, что обеспечивает безопасность и удобство эксплуатации, которую также можно использовать как кладовую для хранения с удобным входом с кухни. -Входная группа (тамбур + крыльцо) защищает дом от сквозняков и осадков. Почему этот дом стоитрассмотреть? Готовый каркас для воплощения ваших дизайнерских идей - сделайте интерьер мечты! Все коммуникации подведены, остаётся только завершить ремонт и заселиться. Идеальный вариант для семьи, ценящей комфорт, уют и близость к природе. Звоните прямо сейчас, чтобы узнать больше и договориться о просмотре! Дом сочетает в себе комфорт, функциональность и практичность - всё для вашего удобства!
                                            97 м2
                                            1 этаж
                                            • Показать контакты
                                            • Добавить в избранное
                                            97 м2
                                            1 этаж
                                            10 800 000 
                                            110 656 /м2
                                              1/40
                                              Коттедж, Лесной переулок, 1б Показать на карте
                                              Голенки
                                              Внимание цена снижена . Предлагаем к продаже настоящую усадьбу - двухэтажный коттедж площадью 262,7 кв.м в д. Голенки Марьяновского района. Дом спроектирован и построен в 1998 году известным архитектором г. Санкт-Петербурга. На земельном участке 25 соток расположены дом, баня 54 кв.м с бассейном, гараж на две машины, хоз. постройки, омшаник, резервуар для воды.Дом построен на фундаменте - блоки 600 х 600 . Глубина фундамента - 180 см. Коммуникации: - вода центральная и скважина,- установлена газовая разводка (тех условия готовы, газ уже заведен в дом.), сейчас купили новую газовую плиту и новый собственник уже будет пользоваться газом в доме. Состояние дома жилое!На полу уложен качественный паркет из лиственницы, в санузлах и зоне кухни - кафельная плитка. В доме два действующих камина, добротная деревянная лестница на второй этаж.Планировка первого этажа включает гостиную, банкетный зал, кухню, бильярдную, санузел с ванной, котельную.На втором этаже четыре спальни, библиотека, санузел с ванной, гардеробная.Перед входом в дом выложена тротуарная плитка.Усадьба находится в живописном месте в 40 мин. езды от города (40 км до Омска) В д. Голенки ходит автобус от автовокзала. Дом подходит под все виды сертификатов. Звоните, покажем в удобное для Вас время.
                                              262 м2
                                              2 этажа
                                              • Показать контакты
                                              • Добавить в избранное
                                              262 м2
                                              2 этажа
                                              10 000 000 
                                              38 066 /м2
                                                1/25
                                                Коттедж, Весенняя 4-я Показать на карте
                                                Дружино
                                                Уютный и современный коттедж, идеально подходящий для жизни за городом, отдыха с семьей или приема гостей. Коттедж сочетает в себе комфорт, стиль и функциональность, создавая атмосферу тепла и уюта. Характеристики коттеджа: - Площадь: 180 кв. м - Этажность: 2 этажа - Участок: 6.75 соток - Материалы строительства: экологичные и долговечные. -Отделка: высококачественные материалы, современный дизайн. Планировка:- 1 этаж: прихожая, кухня-столовая, просторная гостиная, санузел, спальная комната, гардеробная, прачечная, кладовая.- 2 этаж: три изолированные спальни, гардеробные, просторная лоджия, санузел. - Дополнительно: гараж, котельная, большой оборудованный погреб.Коммуникации:- Отопление: индивидуальное (газ, электричество).- Водоснабжение: центральное, бойлер.- Канализация: септик. - Электричество: выделенная мощность 15кв.Особенности и преимущества: -Качественная звуко- и теплоизоляция. - Ухоженная территория. Уникальное предложение для владельцев недвижимости.•Если у вас есть непроданная недвижимость, у нас есть решение! Мы предлагаем программу Тrаdе-in, которая позволит вам использовать вашу старую недвижимость в качестве оплаты за новую.•Нужна ипотека? Компания Квартсервис работает с ведущими банками, чтобы предложить вам выгодную ипотеку с низкими ставками! Это ваша возможность сэкономить время и деньги.•Все необходимые документы уже готовы и прошли юридическую экспертизу.Не упустите шанс стать владельцем этого замечательного коттеджа! Звоните прямо сейчас, чтобы договориться о просмотре!Показ проводится по предварительной записи в удобное для вас время.Омская обл.,Омский р-н,с. Дружино,ул. 4-я Весенняя.Арт. 105016236
                                                180 м2
                                                2 этажа
                                                • Показать контакты
                                                • Добавить в избранное
                                                180 м2
                                                2 этажа
                                                14 100 000 
                                                78 333 /м2
                                                  1/10
                                                  Дом, Святого патриарха Тихона Московского Показать на карте
                                                  Пушкино
                                                  Продается новый дом в п. Русский стиль (Пушкино) Семейная ипотека 6%. Сельская ипотека 3%. МАТЕРИНСКИЙ КАПИТАЛ.Цена с учетом участка.Фундамент, винтовые сваи 89/6мм 3м.Перекрытие цокольное и перекрытие верхнее (потолок по скату кровли) из SIP-панелей толщиной 224мм (ППС 25 ГОСТ, ОСБ 12мм)Стены внешнего контура из SIP-панелей толщиной 174 мм (ППС 25 ГОСТ, ОСБ 12мм)Стены несущие внутренние (обозначены большей толщиной) деревянный каркас, без утепления и обшивкиОблицовка кровли и фасадаОкна ПВХ 5-камерные графитового цвета, энергосберегающиеТерраса из деревянной сухой доски покрытое маслом для террасЛестница деревянная (ступени)Перегородки из металлического профиля и гипсокартона с шумоизоляциейТеплый водяной пол с полусухой стяжкойОтопление, электрокотелКанализация (в доме)Водопровод (в доме)Электрика (внутри дома, без розеток, выключателей и осветительных приборов)Гипсокартон 12мм. 2 слоя, без шпатлевки и покраскиСептик (трасса до 10м.п.)Скважина до 20 м.п. (трасса до 10м.п.)Электропитание по участку до дома (воздушный, СИП провода до 30м.)Очень хорошее место. Рядом есть вся инфраструктура: школа, сад, магазин. Регулярный автобус.Помощь в оформлении ИПОТЕКИ.Все вопросы по телефону.
                                                  84 м2
                                                  1 этаж
                                                  • Показать контакты
                                                  • Добавить в избранное
                                                  84 м2
                                                  1 этаж
                                                  7 500 000 
                                                  89 286 /м2
                                                    • В начало
                                                    • 22
                                                    • 23
                                                    • 24
                                                    • 25
                                                    • 26
                                                    • Следующая
                                                    Распечатать
                                                    Продажа домов, коттеджей в Омске
                                                    • по районам
                                                    • Кировский район
                                                    • Ленинский район
                                                    • Октябрьский район
                                                    • Советский район
                                                    • Центральный район

                                                    Вместе с этим также ищут:

                                                    Продажа квартир в Омске Продажа однокомнатных квартир в Омске Продажа комнат в Омске Продажа гаражей в Омске Продажа вторички - квартиры в Омске Квартиры в новостройках в Омске

                                                    🏠 Как купить дом, коттедж в Омске на N1?

                                                    • ✔ В поисках объявления о продаже или покупке домов, коттеджей в Омске?
                                                    • ✔ На N1 размещены 1,47 тыс домов, коттеджей
                                                    • ✔ Чтобы купить или продать недвижимость, воспользуйтесь формой поиска, фильтрами или быстрыми ссылками.

                                                    💸 Сколько стоит дом, коттедж в Омске?

                                                    • 🟢 Средняя цена продажи домов, коттеджей - 8,39 млн ₽
                                                    • 🟢 Минимальная стоимость за 1 м2: 64,80 тыс ₽

                                                    📚 Какая площадь домов, коттеджей?

                                                    • Наибольшая площадь: 1,07 тыс м²
                                                    • Минимальная площадь: 8 м²