5-к, Магистральная, 18 Показать на карте
Советский район, городок Нефтяников
Омск
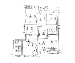
Вы ищете идеальное жилье для комфортной жизни? Представляем вам уникальное предложение двухуровневая квартира в Советском округе Омска по адресу: Магистральная ул., 18. Эта квартира с идеальным ремонтом и потрясающим видом из окон станет вашим уютным уголком! На первом этаже вас встретит просторная кухня с великолепным гарнитуром и лоджией, где приятно проводить время за семейными обедами. Уютная гостиная станет идеальным местом для теплых встреч с друзьями и родными. Здесь же вы найдете современный санузел с зеркалом и удобной подсветкой. Не забудем про светлую спальню, которая может выполнять роль детской или гостевой с застекленной лоджией, она станет отличным местом для отдыха. Поднимаясь на второй этаж, вы попадете в мир уюта и приватности! Две просторные солнечные спальни, одна из которых родительская, обеспечат вам необходимое пространство для сна и восстановления сил. Здесь также есть большой совмещенный санузел и две гардеробные, что позволит вам хранить вещи организованно и с комфортом. Просторный коридор и библиотека добавят удобства и эстетической привлекательности вашему новому дому. Квартира располагается на пятом и шестом этажах кирпичного дома, построенного в 1998 году. Высокое качество строительства и современные отделочные материалы обеспечивают актуальность и долговечность жилья. Четыре балкона позволяют наслаждаться прекрасным видом как на двор, так и на улицу. Все комнаты правильной формы создают ощущение пространственности и свободного дыхания. Инфраструктура в округе прекрасно развита: рядом находятся школа, детский сад, торговый центр, парк и фитнес-центр. Это делает квартиру идеальным выбором для семей с детьми и тех, кто предпочитает активный образ жизни. Мебель остается в квартире, что позволяет вам заехать и сразу начать новую жизнь в этом прекрасном жилье. Не упустите возможность стать владельцем этой удивительной квартиры здесь каждый найдет уголок для отдыха и работы! Звоните прямо сейчас, чтобы договориться о просмотре. Без обременений!
134 м2
6 / 6 этаж
Кирпич
- Показать контакты
- Добавить в избранное
134 м2
6 / 6 этаж
Кирпич
19 500 000
144 552 /м2
