4-к, Дмитриева, 19 Показать на карте
Кировский район, 12-й микрорайон
Омск
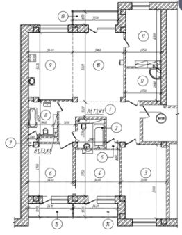
Центр недвижимости и ипoтеки ''TандемТ'' пpедлaгaет вaшeму внимaнию квapтиpу в 4-х в 12 микрорайоне Кировского округаОбщая площадь квартиры составляет 76,1 кв м, что обеспечивает достаточно места для комфортного проживания семьи, 4 изолированные комнаты, что обеспечивает приватность для каждого члена семьи и больше возможностей для организации пространства по вашему усмотрению.Расположение квартиры на 6 этаже придает прекрасный вид и позволяет избежать шума от улицы.Два застекленных балкона добавляют дополнительное пространство для отдыха и хранения вещей, а также позволяют наслаждаться свежим воздухом и пейзажами из уюта дома.Квартира находится в 12 микрорайоне, что представляет выгодное местоположение с развитой инфраструктурой и удобным доступом ко всему необходимому. В непосредственной близости расположены Физкультурно-оздоровительный комплекс, торговые центры Мега, Фестиваль, Континен, а также детский сад 178, школа 151, гимназия 140, лицей 137, что делает этот вариант идеальным для семей с детьми.Эта квартира представляет собой удобное и функциональное жилье, которое удовлетворит потребности даже самых взыскательных жильцов. Не упустите возможность приобрести такой уютный и просторный дом для вашей семьи в столь удобном районе!Гарантируем безопасное и комфортное сопровождение сделки. Страховая гарантия Профессиональной ответственности Компании! Центр недвижимости и ипотеки ''ТандемТ'' является действительным членом Омского Союза риэлторов, Российской Гильдии риэлторов. Имеет сертификат соответствия национальным стандартам Российской Гильдии риэлторов.Номер объекта: #1/537441/24613
76 м2
6 / 10 этаж
Панель
- Показать контакты
- Добавить в избранное
76 м2
6 / 10 этаж
Панель
9 100 000
119 580 /м2
