3-к, Ватутина, 26/1 Показать на карте
Кировский район, 12-й микрорайон
Омск
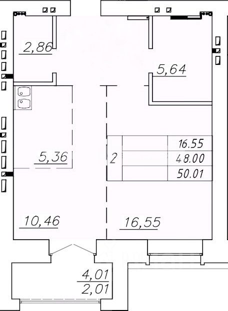
Продается уютная трехкомнатная квартира в Омске на улице Ватутина, 26/1. Общая площадь составляет 65.1 кв.м, жилая — 40 кв.м, а кухня — 10 кв.м. Квартира расположена на 8 этаже девятиэтажного монолитного дома, построенного в 1994 году. Высота потолков — 2.6 метра. Из окон открывается вид как на улицу, так и во двор.В квартире сделан косметический ремонт, поэтому можно сразу заехать и жить без необходимости дополнительных вложений. Просторная кухня отлично подойдет для семейных ужинов. В квартире есть одна лоджия и раздельный санузел, что добавляет комфорта. Дом в хорошем состоянии, оснащен пассажирским лифтом и мусоропроводом, поэтому можно не беспокоиться о бытовых вопросах. На придомовой территории предусмотрена наземная парковка, где всегда можно найти место для вашего автомобиля.Район обладает развитой инфраструктурой: в шаговой доступности находятся школы, детские сады, клиники и магазины. Это создает комфортные условия для жизни с детьми. Хорошая транспортная доступность позволяет быстро добраться до любой части города.Тип сделки — продажа. Квартира в собственности без обременений. Возможно приобретение в ипотеку. Все документы готовы к сделке, поэтому можно быстро оформить все необходимые бумаги.Приглашаем вас на просмотр, чтобы лично оценить все преимущества этой квартиры. Звоните и записывайтесь на удобное для вас время!
65 м2
8 / 9 этаж
Монолит
- Показать контакты
- Добавить в избранное
65 м2
8 / 9 этаж
Монолит
6 799 000
104 439 /м2
