4-к, Карла Маркса проспект, 40 Показать на карте
Ленинский район
Омск
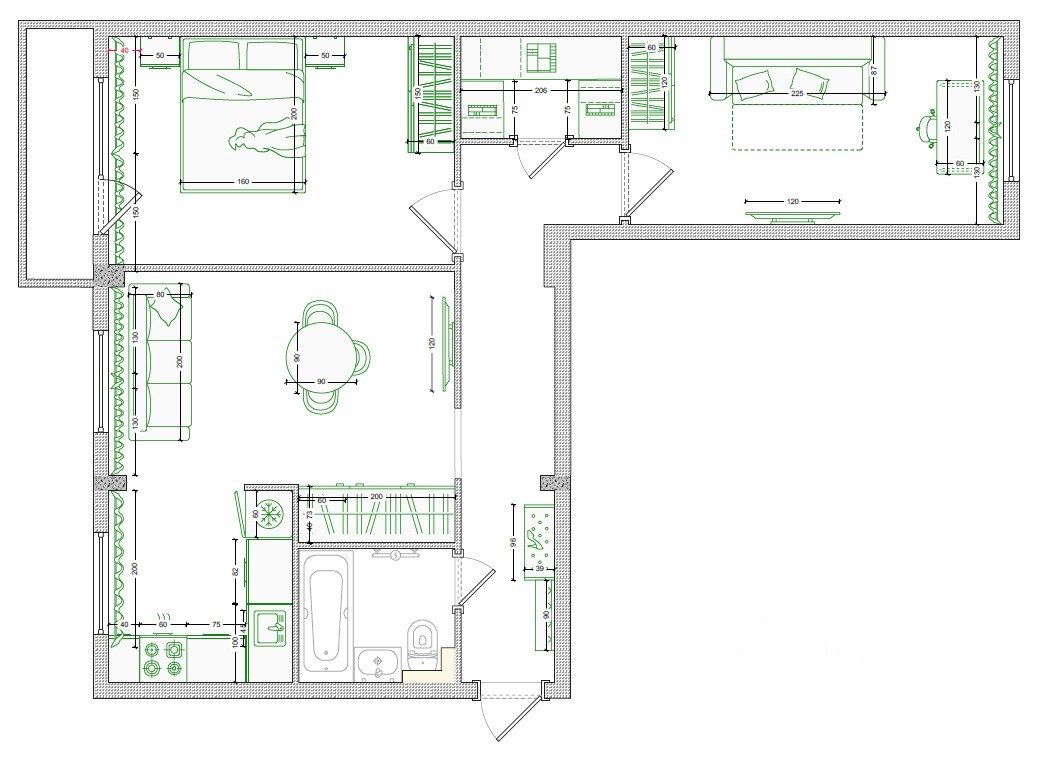
Предлагаем к покупке квартиры физическим и юридическим лицам. Респектабельный жилой комплекс ''Граф'' создан для амбициозных личностей! Проект сочетает в себе элегантные элементы фасада в стиле ''Неоклассика'', роскошь внутреннего убранства входных групп, престижное соседство, надежные материалы строительства, комплексные инженерные решения. Все направлено на создание особой атмосферы уюта, комфорта и защищенности. Закрытая территория, консьерж, большое количество осветительных приборов обеспечат комфортное пребывание внутри ЖК ''Граф''. Реализация квартир в соответствии n 214-фз с использованием эскроу-счетов, что делает покупку максимально безопасной.Дом полностью выполнен из кирпича, толщина наружной стены 77 см, что говорит о его надежности. Высокие потолки (2,85) и большие окна создадут особый эффект свободного пространства. Окна ПВХ с системой кбе эксперт 70 мм (толщина), 5 камер, цвет темный дуб (снаружи) ламинация. Фурнитура поворотно-откидная, roto nt.Внутренняя отделка: черновая, позволит вам реализовать любой дизайн проект, ведь в вашем распоряжении чистая, свободная площадь для реализации задуманного. Потолки бетонная поверхность, пол бетонная поверхность, стены кирпичные, межкомнатные стены отсутствуют, выделены санузлы.Инфраструктура максимально комфортна для жизни современного человека. Остановка ''Хлебозавод'', Бульвар Победы, Иртышская набережная, Гимназия 75, Лицей 92, Детские сады: 293, 247, Поликлиника 2, Медицинский центр ''Ситимед'', Рестораны: ''Пентхауз Марка Миллера'', ''Город Мастеров'', ''Mr. Butler'', ''Birliman'', Торговые центры: ''Каскад'', ''Новый дом'', ''Пассаж'', Продуктовые супермаркеты: ''Магнит'', ''Пятерочка'', ''Океан''.Документы готовы, чистая продажа, рассрочка. Ипотека, военная ипотека, ипотека с материнским капиталом. Эксклюзивный договор
108 м2
5 / 9 этаж
Кирпич
- Показать контакты
- Добавить в избранное
108 м2
5 / 9 этаж
Кирпич
19 930 000
184 469 /м2
Новостройка,
дом сдан
дом сдан
