3-к, 70 лет Октября, 6/1 Показать на карте
Кировский район, 10-й микрорайон (Тополиный)
Омск
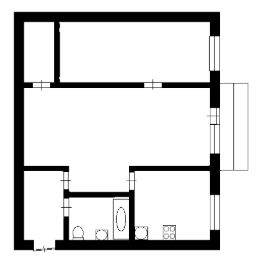
Продаётся уютная трёхкомнатная квартира площадью 69.5 квадратных метров на улице 70 лет Октября, дом 6/1 в живописном районе города Омска. Это прекрасное предложение для тех, кто ценит комфорт и удобство.Расположенная на последнем пятом этаже панельного дома, построенного в 1986 году, квартира имеет светлую и просторную планировку: жилая площадь составляет 40.1 квадратных метра, а кухня 10.6 квадратных метров. Благодаря двум балконам открывается чудесный вид на тихий двор и зелёный парк, что создаёт атмосферу уединения и спокойствия.Санузел раздельный, что добавляет дополнительное удобство для большой семьи или гостей. При продаже остаётся кухонный гарнитур и вместительный шкаф-купе в коридоре. Квартира в хорошем, пригодном для проживания состоянии.Для детей во дворе обустроена безопасная игровая площадка, а взрослым понравится спортивная зона для занятий на свежем воздухе. Также рядом находятся школа и детский сад, что делает этот район идеальным выбором для семей с детьми. Для активного отдыха и прогулок на природе в шаговой доступности расположен парк, где можно насладиться свежим воздухом и зеленью.Любителям шопинга и развлечений придутся по вкусу близлежащие торговые центры, а фитнес-центр позволит поддерживать себя в отличной физической форме. Кроме того, рядом расположены несколько салонов красоты и медицинских учреждений, включая детскую поликлинику и аптеки, что значительно упрощает решение повседневных задач.Этот вариант жилья подойдёт как для жизни, так и для инвестиций, благодаря своему расположению и развитой инфраструктуре района. Приглашаем вас оценить все преимущества этой замечательной квартиры лично!Чистая продажа. Один взрослый собственник. Без обременений.
69 м2
5 / 5 этаж
Панель
- Показать контакты
- Добавить в избранное
69 м2
5 / 5 этаж
Панель
7 400 000
106 322 /м2
