2-к, Петра Осминина, 10 Показать на карте
Октябрьский район, Чкаловский пос.
Омск
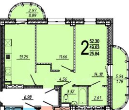
На чистой продаже просторная двухкомнатная квартира 55,7 кв.м, расположенная на 3 этаже 5-ти этажного панельного дома 1965 года постройки, в Чкаловском поселке Октябрьского округа.Окна выходят на задний двор школы 45, который летом превращается в уютный зеленый уголочек, а осенью яркие краски природы балуют взор по-новому. Квартира очень теплая, светлая, уютная, с прекрасной атмосферой.Планировка включает две смежные комнаты 10,9 и 17,4 кв.м, просторную кухню 14,7 кв.м, которая служит прекрасной светлой гостиной с двумя окнами, совмещенный санузел, просторную прихожую. Гостиная придает такую чудесную и теплую атмосферу, что создает непередаваемый уют квартире. По необходимости в квартире остается вся мебель. Балкон застеклен, чистенький, обшит вагонкой внутри, а снаружи сайдингом. Окна ПВХ, все приборы учета. Чистый подъезд, отличные соседи! Дворик уютный, ухоженный с озеленением. Рядом вся инфраструктура: остановки общественного транспорта ''Рынок'', ''Петра Осминина'', ПО ''Автоматика'' детские сады 304,306,38,278,330, школы 45,41,73, Инженерно-технологический лицей 2, Социальный рынок, Поликлиника 17, Женская консультация 4, магазины, пункты выдачи Озон, Wildberries.Один взрослый собственник более 5 лет, без долгов и обременений, подходит под любой вид расчетов. Перепланировка узаконена. Помогу с одобрением ипотеки на самых выгодных условиях.Звоните, покажем в удобное для Вас время!
55 м2
3 / 5 этаж
Панель
- Показать контакты
- Добавить в избранное
55 м2
3 / 5 этаж
Панель
5 190 000
93 178 /м2
