Коттедж, Строителей, 1 Показать на карте
Усть-Заостровка
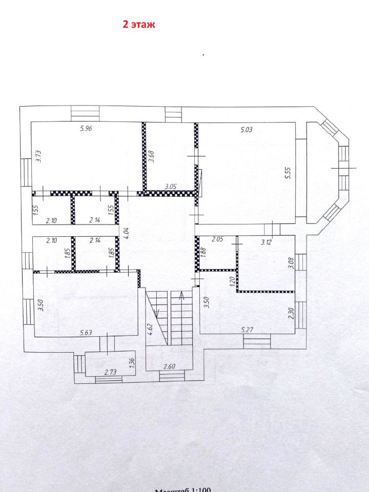
Арт. 135949729 АН ''Ледон'' предлагает к приобретению загородный дом в экологически чистом районе области, в поселке Усть-Заостровка, в 15 км от города по комфортной дороге. Двухэтажный кирпичный дом полностью благоустроен (водоснабжение, канализация, газовое отопление). Удачная планировка: 4 спальни, гостиная с действующим камином, кухня-столовая, два санузла, прачечная. Ремонт в доме выполнен частично. В цокольном этаже законченный ремонт. По дому полностью произведены разводки электричества и отопления. Установлены алюминиевые радиаторы, теплый пол. Окна ПВХ с готовыми откосами. В дом два входа: центральный и с участка, предусмотрен выход из дома в гараж. Гараж кирпичный на две машины, с погребом, выложенным кирпичом, и смотровой ямой. Заведена вода. На участке (15 соток ) , кроме основного строения, расположены сауна на дровах (с комнатой для отдыха и душевой, облицованной кафелем), беседка с мангальной зоной, летняя кухня (обшитая вагонкой), хоз постройки. В бане выполнен ремонт. Все под одной крышей. Теплица размером 4,5 х 10 поликарбонатовая (2 слоя) на железобетонном фундаменте. Каркас - оцинкованный металл. Выполнен ландшафтный дизайн участка. Тротуар выложен гранитными блоками. Разводка летнего водопровода под землей. Имеется пять выходов для подключения. Посажены плодово-ягодные культуры. Дом находится на 2 линии от Иртыша. Есть спуск к реке. Берег песчаный. Прекрасные подъездные пути к поселку, дому. Превосходная, уютная усадьба с возможностью сделать все ''под себя'' для гармоничной жизни и комфортного отдыха ждет своего нового хозяина. Торг под конкретного покупателя предусмотрен. Рассмотрим варианты обмена на квартиру в Омске.
259 м2
2 этажа
Кирпич
- Показать контакты
- Добавить в избранное
259 м2
2 этажа
Кирпич
13 950 000
53 861 /м2
