Дом, Боровая Показать на карте
Красноярка
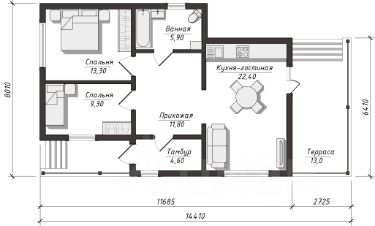
Компания '' Прайд- центр'' предлагает к продаже благоустроенный дом блокированной застройки. Возможно, приобрести за счет ипотечных средств и материнского капитала. Дом, на 2 хозяина. Площадь нашей половины дома 59.6 кв. м. Дом, 1970 года постройки, на фундаменте, возведен из долговечного, природного материала- бруса, для покрытия крыши использовали металлосайдинг. Дом обеспечен центральным водоснабжением, электричеством, газификацией, канализация- септик, отопление- газовое. Дом состоит из 4-х комнат, кухни и теплого санузла. В доме установлены окна ПВХ, в некоторых комнатах установлены натяжные потолки, на кухне- потолочные панели. Для покрытия пола использовали линолеум с принтом под ламинат. Санузел совмещён, очень просторный, установлена новая сантехника и душевая кабина. Дом располагается на земельном участке, площадью 12.6 соток. Земля оформлена в собственность, сделано межевание. На земельном участке имеется банька со свежим ремонтом, в огороде имеется новая теплица. Имеется место для авто, оборудован заезд для машины. Инфраструктура:Село Красноярка имеет городскую инфраструктуру: школа, детский сад, продуктовые магазины, супермаркеты Магнит, Низкоунн, Пятерочка, Бристоль, торговые комплексы, больница, Сбербанк, почтовое отделение, федерация Тхэквондо, церковь с приходом и многое другое необходимое для комфортного проживания современного человека. В Красноярске располагаются несколько баз отдыха и детских лагерей. Экологическая обстановка:Село Красноярка находится на берегу реки Иртыш и нескольких озер, в курортной эко-зоне, на территории, обладающей природными лечебными ресурсами, наиболее благоприятными микроклиматическими, ландшафтными и санитарно-гигиеническими условиями. Хорошая экологическая обстановка обусловлена непосредственной близостью к лесному массиву. Это место, окружено березовыми рощами и сосновым бором. Окрестности поселка богаты грибными, ягодными и рыбными местами.Окажем помощь в оформлении ипотеки в проблемных ситуациях.
59 м2
1 этаж
Дерево
- Показать контакты
- Добавить в избранное
59 м2
1 этаж
Дерево
4 390 000
73 658 /м2
