Дом, Советская, 113 Показать на карте
Павлоградка
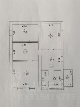
Продаётся отдельно стоящий дом 74,3 кв.м., 1952г.п., (дерево, кирпич, обшит сайдингом, отличное состояние, окна ПВХ, централизованное газовое отопление, центральный водопровод (счётчики) в доме (выгребная яма), туалет на улице, колодец, бойлерная, баня. 4 смежно-изолированных комнат, большая кухня (10 кв.м.). Земельный участок 1342 кв.м. (межевание). Категория земель: земли населенных пунктов. Вид разрешенного использования: для ведения личного подсобного хозяйства. Во дворе хоз. постройки, гараж, большой огород, теплица, беседка, палисадник, имеются посадки: яблоня, груша, вишня, малина, смородина, крыжовник, жимолость, виктория. Дом расположен в удобном месте. Не далеко магазин, школа, дет. Сад. Документы готовы. Продажа в связи с переездом в другой регион.
74 м2
1 этаж
Кирпич
- Показать контакты
- Добавить в избранное
74 м2
1 этаж
Кирпич
3 700 000
49 798 /м2
