Коттедж, Курганская 3-я, 22 Показать на карте
Кировский район, Старый Кировск
Омск
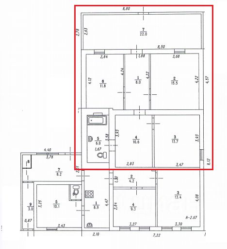
Арт. 133578269 Новый дом! И не только из-за его уюта и простора для дружной семьи, но и благодаря качеству и продуманности каждой детали! Основа дома надежность и тепло: Стены: Толщина 400 мм из ВАрмит (теплоэффективный материал) + штукатурка и покраска. Фундамент: Мощный свайно-ростверковый (размеры ростверка 70 см х 60 см). Надежная основа на десятилетия! Полы: Бетонные + система ТЕПЛОГО ПОЛА по всей площади дома! Никакого холодного линолеума только комфорт для маленьких ножек! Крыша: Надежное покрытие из профнастила. Инженерные системы (Ваш комфорт и спокойствие): Отопление: Максимальная надежность! Газовый напольный котел + электрическое отопление + резервная ПЕЧЬ. Зима вам не страшна! Горячая вода: Бойлер на 100 литров . Вода/Канализация: Центральное водоснабжение + автономная канализация (септик из 3 колец по 1,5 м). Электричество: 380 кВт (3 фазы) заведены в дом. Мощности хватит на всё! Вентиляция: Две вытяжки (на кухне и в санузле) для свежего воздуха. Простор и Уют для Семьи: Потолки: Высокие 2.8 метра на 1 этаже, 2.5 метра на 2 этаже. Ощущение простора и свободы! Территория: Участок с забором + гараж для вашего авто. Атмосфера: Этот дом создан для счастья, смеха детей и теплых семейных вечеров!Его нужно один раз увидеть и у вас сразу возникнет желание купить его и остаться здесь жить! Это не просто дом, это крепость, наполненная теплом и технологичным комфортом для вашей дружной семьи.Рассмотрим обмен на 1-к квартиру !ЗВОНИТЕ ПРЯМО СЕЙЧАС! Покажем этот прекрасный и технологичный дом лично, расскажем все нюансы!
133 м2
2 этажа
- Показать контакты
- Добавить в избранное
133 м2
2 этажа
10 800 000
81 081 /м2
