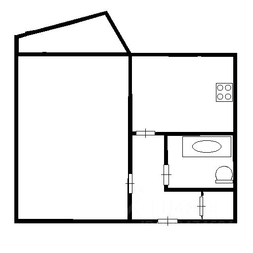
Сдается уютная квартира на длительный срок. Без детей и животных. Просторная, с дизайнерским ремонтом, стильные шкафы и встроенные элементы создают комфортное пространство. Кухня площадью 9 м² оборудована необходимой техникой.
Квартира расположена на втором этаже десятиэтажного дома. Санузел совмещенный, выполнен в современном стиле. Из окон открывается приятный вид на двор. Осмотр после 19-00 или в выходные.
Предоплата за 1 месяц
Залог 12 000 ₽






