Если цена в объявлении изменится, мы сразу сообщим вам об этом на электронную почту.
Нажимая «Подписаться», вы соглашаетесь с правилами.
продам 3-к, Дмитриева, 17/111 900 000 ₽
25 янв
Дата публикации объявления
Обн. 3 апр
Дата обновления объявления
4
Количество просмотров (+ просмотры за сегодня)
160 594 ₽/м²
Чистая продажа
Термин "Чистая продажа" означает, что в квартире никто не прописан или
есть куда выписаться и вывезти вещи. Это лучший вариант для покупателя.
Вероятность срыва сделки минимальна.
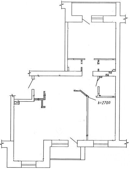
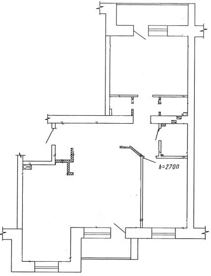
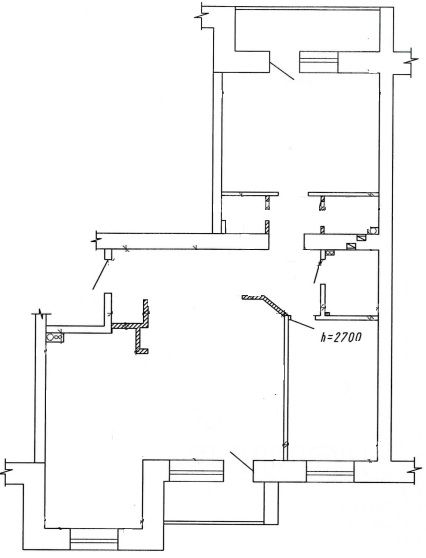
Продается уютная трехкомнатная квартира с ремонтом в кирпичном доме, построенном в 2013 году. Расположен дом на удалении от проезжих улиц, тем самым отсутствует шум мимо проезжающего автотранспорта. В шаговой доступности остановки общественного транспорта, детские садики, школа, гимназия и лицей, магазины, торговые комплексы и торговые центры, почта и МФЦ. Во дворе дома имеется огромная открытая автопарковка, детская и спортивная площадки. Дом оборудован грузо-пассажирским лифтом и оснащен системой видеонаблюдения с интеллектуальным домофоном. Из окон открывается вид во двор на теневую и солнечную сторону, наполняя квартиру естественным светом.
Просторная кухня станет отличным местом для семейных обедов.
Продается уютная трехкомнатная квартира с ремонтом в кирпичном доме, построенном в 2013 году. Расположен дом на удалении от проезжих улиц, тем самым отсутствует шум мимо проезжающего автотранспорта. В шаговой доступности остановки общественного транспорта, детские садики, школа, гимназия и лицей, магазины, торговые комплексы и торговые центры, почта и МФЦ. Во дворе дома имеется огромная открытая автопарковка, детская и спортивная площадки. Дом оборудован грузо-пассажирским лифтом и оснащен системой видеонаблюдения с интеллектуальным домофоном. Из окон открывается вид во двор на теневую и солнечную сторону, наполняя квартиру естественным светом.
Просторная кухня станет отличным местом для семейных обедов. Кухня оснащена индивидуальным кухонным гарнитуром, встроенной бытовой техникой: варочная плита, духовой шкаф, вытяжка, посудомоечная машина, стиральная машина, холодильник, фильтр для питьевой воды. Кухня смежная с залом, а комнаты раздельные, что обеспечивает комфортное проживание. В квартире есть гардеробная комната, а также раздельный санузел, что добавляет удобства в повседневной жизни. По всей квартире натяжные двухуровневые потолки. На стенах обои, на полу уложен линолеум. Имеется водонагревательный бак на 30 литров предназначенный для резервного горячего водоснабжения.
Квартира имеет две лоджии. Лоджии утеплены и остеклены окнами с двойным остеклением, пол деревянный, стены и потолок отделаны деревянной вагонкой. Они являются приятным и необходимым дополнением к квартире.
В квартире, по договоренности, новым жильцам остается вся мебель, люстры и встроенная бытовая техника.
Квартира продается от собственника. Возможна покупка в ипотеку. Перепланировка квартиры узаконена. Один и единственный взрослый собственник. Обременения отсутствуют. Чистая продажа.