Если цена в объявлении изменится, мы сразу сообщим вам об этом на электронную почту.
Нажимая «Подписаться», вы соглашаетесь с правилами.
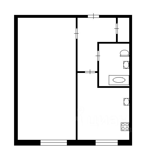
продам 1-к, Бархатовой, 84 070 000 ₽
23 янв
Дата публикации объявления
Обн. 28 апр
Дата обновления объявления
4
Количество просмотров (+ просмотры за сегодня)
132 573 ₽/м²
Чистая продажа
Термин "Чистая продажа" означает, что в квартире никто не прописан или
есть куда выписаться и вывезти вещи. Это лучший вариант для покупателя.
Вероятность срыва сделки минимальна.
Номер объекта: 537675. Продается уютная ''однушка'' с идеальным ремонтом в центре Омска. Район мечты для жизни!
Устали искать квартиру, где уже все сделано, и можно просто заехать и жить? Ваши поиски окончены!
Центр недвижимости и ипотеки ''ТандемТ'' с удовольствием представляет эту замечательную 1-комнатную квартиру на улице Бархатовой. Это не просто ''коробка'', а полностью готовый к комфортной жизни дом с продуманным до мелочей ремонтом.
Почему эта квартира - отличный выбор:
- идеальное состояние ''под ключ'': вся квартира сделана с шикарным ремонтом! Вы не потратите ни копейки на отделку. Заменены ВСЕ инженерные коммуникации, электрика, установлены современные окна ПВХ и новая сантехника. Установлены счетчики на воду.
Номер объекта: 537675. Продается уютная ''однушка'' с идеальным ремонтом в центре Омска. Район мечты для жизни!
Устали искать квартиру, где уже все сделано, и можно просто заехать и жить? Ваши поиски окончены!
Центр недвижимости и ипотеки ''ТандемТ'' с удовольствием представляет эту замечательную 1-комнатную квартиру на улице Бархатовой. Это не просто ''коробка'', а полностью готовый к комфортной жизни дом с продуманным до мелочей ремонтом.
Почему эта квартира - отличный выбор:
- идеальное состояние ''под ключ'': вся квартира сделана с шикарным ремонтом! Вы не потратите ни копейки на отделку. Заменены ВСЕ инженерные коммуникации, электрика, установлены современные окна ПВХ и новая сантехника. Установлены счетчики на воду. Просто добавьте свои вещи!
- очень теплая и светлая: квартира расположена в середине панельного дома, что гарантирует ей отличную теплоизоляцию. Она солнечная и уютная в любое время года.
- удобнейшая планировка и этаж: второй этаж 5-этажного дома — золотая середина. Никаких подъемов по высоким этажам без лифта, и при этом прекрасный вид из окна. Планировка практичная и рациональная.
- Лучшая инфраструктура прямо у дома: Вы будете жить в самом сердце развитого района. В шаговой доступности:
- Магазины: ТК ''На Бархатовой'', ''Лента'', ''Магнит''.
- Рынок ''Первомайский'' для свежих продуктов.
- Кинотеатр ''Первомайский'' и ледовая арена им. Родниной для отдыха.
- Вся необходимая социальная инфраструктура: детский сад (прямо во дворе!), школы, поликлиника, почта, аптека.
Приятное окружение: Чистый ухоженный подъезд, доброжелательные соседи. Во дворе - детская и спортивная площадки, а также коробка для фигурного катания. Территория облагорожена.
Отличная транспортная доступность: Всего 3 минуты пешком до ближайшей остановки.
Технические детали:
- адрес: г. Омск, ул. Бархатовой, 8, 2-й этаж 5-этажного панельного дома (1974 г.п., газ для приготовления пищи).
- состояние: евроремонт, замена всех коммуникаций.
-санузел: совмещенный, с новой сантехникой.
- документы: абсолютно чистая продажа. Никаких долгов, обременений и прописанных лиц. Два взрослых собственника. Документы полностью готовы к сделке.
- финансы: возможна покупка с использованием ипотеки.
Эта квартира - идеальный вариант для первого собственного гнездышка, для инвестиции или для комфортной жизни в самом центре событий.
Не упустите свой шанс поселиться в обустроенном доме в лучшем районе!
Звоните прямо сейчас, чтобы назначить просмотр и убедиться во всем лично!