Если цена в объявлении изменится, мы сразу сообщим вам об этом на электронную почту.
Нажимая «Подписаться», вы соглашаетесь с правилами.
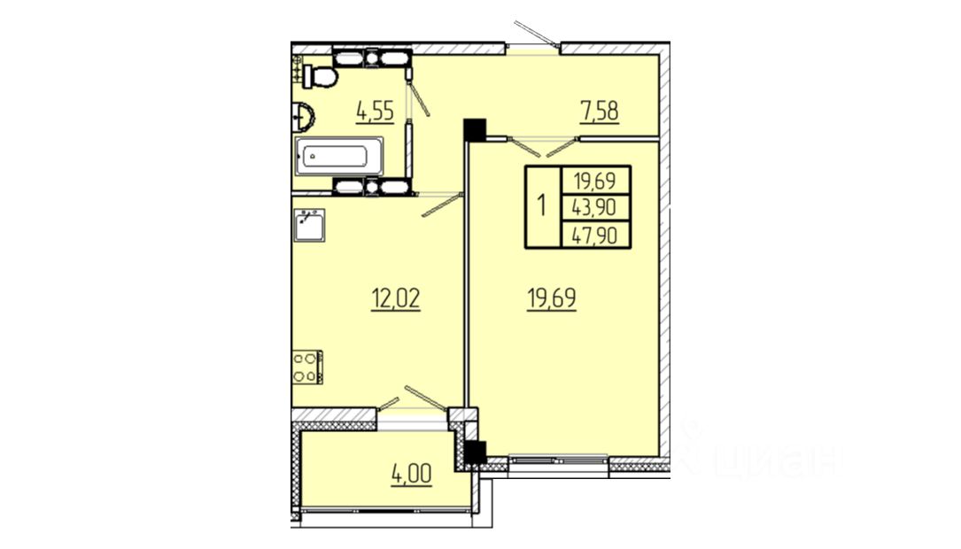
продам 1-к, Волгоградская, 3 стр.6 778 000 ₽
15 янв
Дата публикации объявления
Обн. 16 апр
Дата обновления объявления
Спецпредложение
Турбо x8
141 503 ₽/м²
Чистая продажа
Термин "Чистая продажа" означает, что в квартире никто не прописан или
есть куда выписаться и вывезти вещи. Это лучший вариант для покупателя.
Вероятность срыва сделки минимальна.