АН Домофон предлагает к продаже земельный участок для строительства дома вашей мечты по индивидуальному проекту в с.Усть -Заостровка.
Участки находятся по ориентиру Ул.2-я, 3-я Северная. К участку подведены коммуникации: свет,центральная вода,газ по улице(с возможностью догазификации).
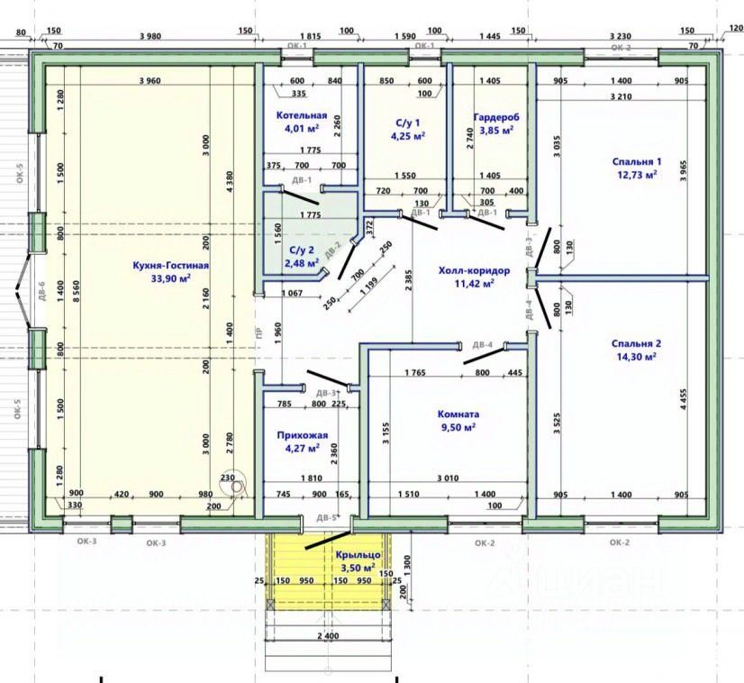
Фото проекта представлены в объявлении. Есть возможность посмотреть готовые проекты. Срок строительства до 6 месяцев
Надежный подрядчик ????????????
Подходит под все льготные ипотечные программы
Номер объекта: #1/537363/24298








