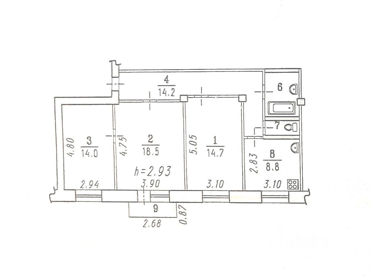
Продается просторная 3-комнатная квартира в кирпичном доме в центре города. Квартира теплая, светлая. Две комнаты изолированы, санузел раздельный, балкон застеклен, установлены приборы учета. Квартира не угловая, с высокими потолками. Косметический ремонт позволяет новым владельцам внести свои изменения по вкусу.
В доме есть наземная парковка, где можно оставить автомобиль.
В шаговой доступности ТЦ Каскад, остановка общественного транспорта, детские сады и две школы (115 и 89). Иртышская набережная и все, что необходимо для комфортного проживания семьи!
Один взрослый собственник.
Чистая продажа!

















