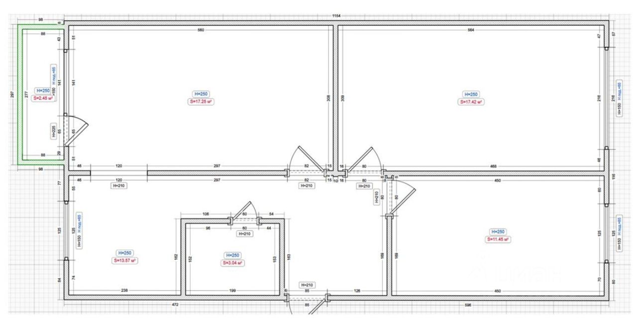
Компания недвижимости ''Реконструкция квартир'' предлагает к продаже трёхкомнатную квартиру 64кв.м. на Левом берегу — отличный вариант для комфортной жизни в развитом районе.
Особенности квартиры: - Продуманная, функциональная планировка - Просторный холл с вместительным встроенным шкафом-купе - Две изолированные комнаты 17,5 и11,5 кв.м., для спокойного отдыха и работы - Гостиная 17,5кв.м. с зоной для обедов и выходом на кухню - Остеклённый балкон для приятных утренних и вечерних моментов - Совмещённый санузел, облицованный кафелем - Расположена на 3-м этаже 5-этажного дома. Не угловая.
Компания недвижимости ''Реконструкция квартир'' предлагает к продаже трёхкомнатную квартиру 64кв.м. на Левом берегу — отличный вариант для комфортной жизни в развитом районе.
Особенности квартиры: - Продуманная, функциональная планировка - Просторный холл с вместительным встроенным шкафом-купе - Две изолированные комнаты 17,5 и11,5 кв.м., для спокойного отдыха и работы - Гостиная 17,5кв.м. с зоной для обедов и выходом на кухню - Остеклённый балкон для приятных утренних и вечерних моментов - Совмещённый санузел, облицованный кафелем - Расположена на 3-м этаже 5-этажного дома. Не угловая.
В квартире остается: - Кухонный гарнитур - Обеденная зона - Встроенный шкаф-купе в прихожей -Письменный стол и шкаф в маленькой комнате.
Инфраструктура: Квартира находится в шаговой доступности от детских садов, школ, сетевых супермаркетов, банков, торговых центров, аптек, больниц, кафе и других социальных объектов, что делает её идеальным выбором для комфортной жизни всей семьи.
Дополнительная информация: - В собственности более 10 лет - Два взрослых собственника - Без обременений
Это отличный выбор для тех, кто ищет комфортное жильё в благоустроенном районе. Поможем получить одобрение на ипотеку от банка. Звоните, организуем показ в удобное для Вас время!