Если цена в объявлении изменится, мы сразу сообщим вам об этом на электронную почту.
Нажимая «Подписаться», вы соглашаетесь с правилами.
продам дом, Отрадная10 500 000 ₽
13 авг 2025
Дата публикации объявления
Обн. 14 мая
Дата обновления объявления
3
Количество просмотров (+ просмотры за сегодня)
57 377 ₽/м²
Чистая продажа
Термин "Чистая продажа" означает, что в квартире никто не прописан или
есть куда выписаться и вывезти вещи. Это лучший вариант для покупателя.
Вероятность срыва сделки минимальна.
Этажей1
Площадь участка10 соток
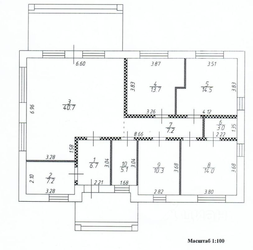
Общая площадь183 м2
ЭлектричествоЕсть
Газоснабжениенет
Компания недвижимости ''Ключники'' предлагает к покупке просторный дом в развивающемся поселке Пушкинский лес. Подходит под семейную ипотеку 6%
Удобная планировка позволит комфортно проживать большой семье - просторная кухня-гостиная, 3 спальни (одна из них мастер-спальня со своим санузлом, котельная, постирочная комната, терраса. Стены дома из газоблока 300м с утеплителем (эковата), обложен кирпичом. Кровля утеплена и накрыта металлочерепицей, фундамент - монолитная плита. Выполнена предчистовая отделка, произведена разводка системы отопления (система теплый пол), стяжка пола, разведена электропроводка, установлен септик, а так же заведена вода. Есть возможность провести газ - проходит по улице.
Компания недвижимости ''Ключники'' предлагает к покупке просторный дом в развивающемся поселке Пушкинский лес. Подходит под семейную ипотеку 6%
Удобная планировка позволит комфортно проживать большой семье - просторная кухня-гостиная, 3 спальни (одна из них мастер-спальня со своим санузлом, котельная, постирочная комната, терраса. Стены дома из газоблока 300м с утеплителем (эковата), обложен кирпичом. Кровля утеплена и накрыта металлочерепицей, фундамент - монолитная плита. Выполнена предчистовая отделка, произведена разводка системы отопления (система теплый пол), стяжка пола, разведена электропроводка, установлен септик, а так же заведена вода. Есть возможность провести газ - проходит по улице.
Также есть возможность построить похожие дома на вашем участке под семейную ипотеку.
Мы гарантируем безопасное и комфортное сопровождение сделки. Если вы хотите купить новую квартиру и у вас есть старая, то мы можем взять вашу недвижимость, в счет оплаты за новую, по системе trade-in.Вам нужна ипотека? Наши партнеры - ведущие банки Омска, поэтому мы оформляем ипотеку по сниженным ставкам сразу в нескольких банках, что значительно экономит ваше время и деньги. Звоните! Ключники, компания Вашей недвижимости.