Если цена в объявлении изменится, мы сразу сообщим вам об этом на электронную почту.
Нажимая «Подписаться», вы соглашаетесь с правилами.
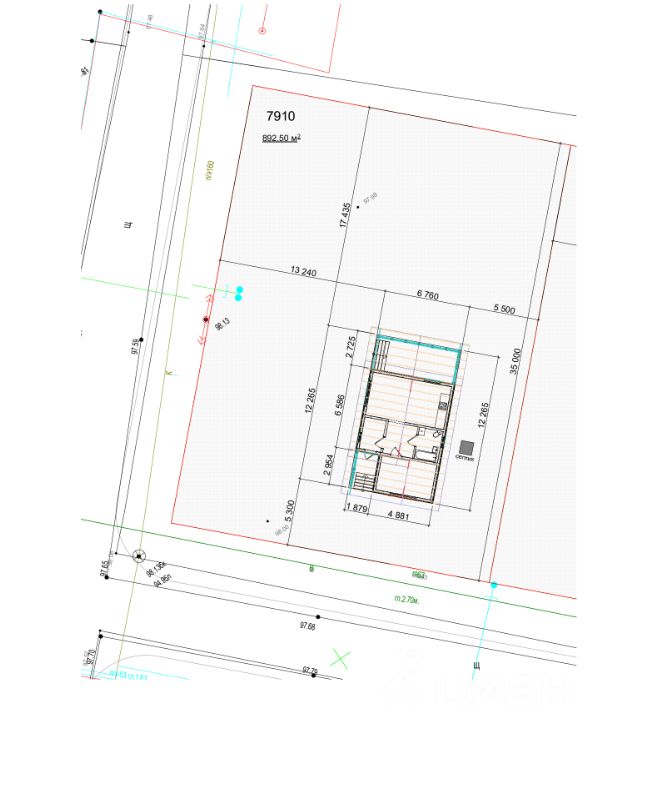
продам дом, Красноярка7 510 000 ₽
3 апр 2025
Дата публикации объявления
Обн. вчера
Дата обновления объявления
4
Количество просмотров (+ просмотры за сегодня)
Топ
117 344 ₽/м²
Чистая продажа
Термин "Чистая продажа" означает, что в квартире никто не прописан или
есть куда выписаться и вывезти вещи. Это лучший вариант для покупателя.
Вероятность срыва сделки минимальна.
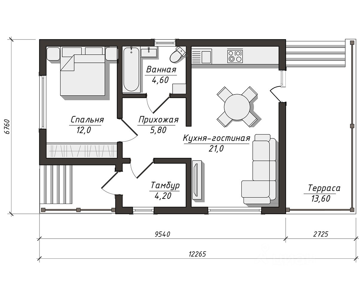
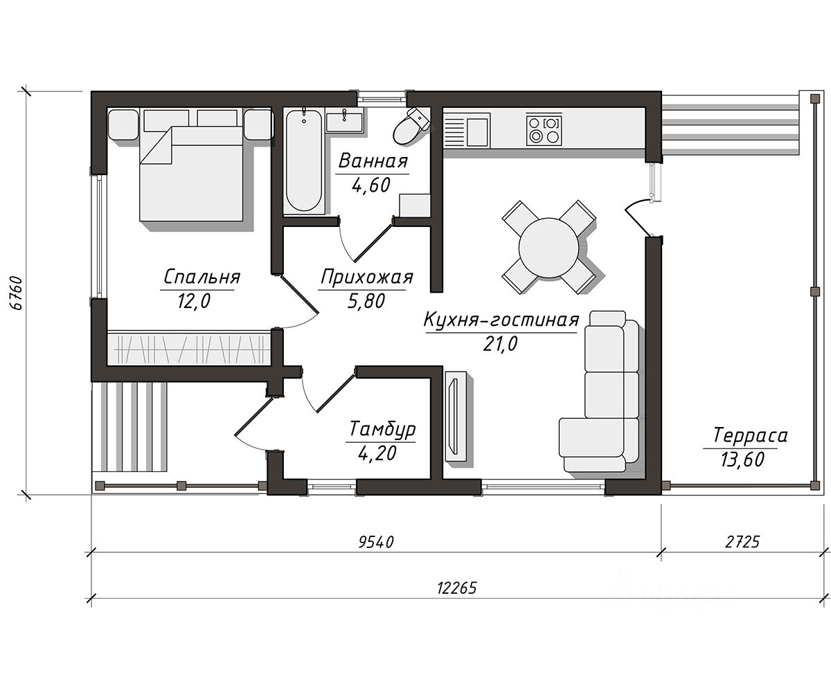
Этажей1
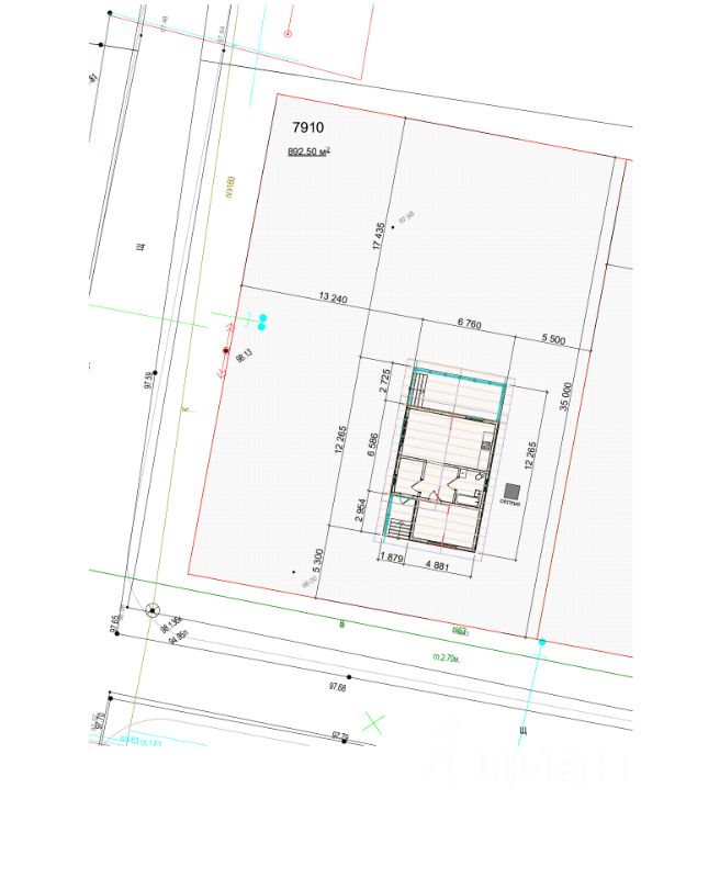
Площадь участка8,52 соток
Общая площадь64 м2
ЭлектричествоЕсть
Газоснабжениецентральное
Прекрасное предложение от застройщика. Готовый дом в курортной зоне Омской области. Свежий воздух, санатории, профилактории, базы отдыха. Все в 7 минутах езды от поселка. Дом отлично подойдет, как дом выходного дня, так и для постоянного проживания. Не большой, компактный. В нем все продуманно до мелочей. В доме одна просторная спальня, прихожая, ванная комната с окном, кухня-гостиная с выходом на потрясающую террасу. Встреча восхода. Завтрак в кругу семьи. Долгие вечерние посиделки на террасе вечером. И это только начало счастливой жизни. В доме выполнена предчистовая отделка. Стяжка пола, теплый пол по свему дому. На стенах прикручен влагостойкий гипсокартон. Установлена система отопления. Электрокотел. Все коммуникации заведены в дом.
Прекрасное предложение от застройщика. Готовый дом в курортной зоне Омской области. Свежий воздух, санатории, профилактории, базы отдыха. Все в 7 минутах езды от поселка. Дом отлично подойдет, как дом выходного дня, так и для постоянного проживания. Не большой, компактный. В нем все продуманно до мелочей. В доме одна просторная спальня, прихожая, ванная комната с окном, кухня-гостиная с выходом на потрясающую террасу. Встреча восхода. Завтрак в кругу семьи. Долгие вечерние посиделки на террасе вечером. И это только начало счастливой жизни. В доме выполнена предчистовая отделка. Стяжка пола, теплый пол по свему дому. На стенах прикручен влагостойкий гипсокартон. Установлена система отопления. Электрокотел. Все коммуникации заведены в дом. Природный газ по границе участка. Биосептик системы ''Юнилос''. Территория 8,52 сотки земли. У вас в собственности. Огорожена фирменным белым забором. Высота 1, 25 см. Поселок развит. Асфальт и освещение по всему поселку. Закрыт по перимерту забором. На въезде КПП. В 5 минутах езды магазин, школа, детский сад, поликлинника, банк, банкоматы, пункты выдачи и все, что необходимо для комфортной жизни за городом.