3-к, Челюскинцев, 99 Показать на карте
Центральный район, Амурский пос.
Омск
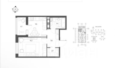
Свободна, ключи при расчёте! АН ''Риэлтконсалт'' предлагает квартиру на чистой продаже, свободную от проживающих, прописанных, ключи от которой можем передать при расчёте. Расположена в центре Амурского посёлка, в районе маг. Заря, в кирпичном доме, на комфортном третьем этаже. Внутри помещения обычный косметический ремонт, произведена замена водопроводной системы, канализационного стояка. Не угловая и очень теплая квартира. Отличная планировка: комнаты смежно-изолированные, причём по площади немаленькие-две по 16,9 м2, третья 14,4м2, ванная комната и санузел раздельные, балкон выходит во двор, на детскую площадку. Была произведена замена газовой плиты, установлен счётчик. Квартиру освободили от мебели. Ухоженный подъезд, на площадке по три квартиры, слышимость между соседними квартирами отсутствует. Отличная инфраструктура и транспортная развязка, в шаговой доступности школы, детские сады, поликлиника, банк, почта, торговые комплексы, аптеки. Взрослые собственники, обременений нет, готова к продаже. Оперативный показ и выход на сделку, рассматриваем любую форму расчёта. При необходимости агентство окажет помощь в оформлении ипотеки, опытные менеджеры гарантируют индивидуальный подход к каждому клиенту.
63 м2
3 / 5 этаж
Кирпич
- Показать контакты
- Добавить в избранное
63 м2
3 / 5 этаж
Кирпич
4 350 000
69 048 /м2
